Как правильно адаптировать проект дома под климатические особенности региона
Рассматривая типовые проекты, имейте в виду, что они разработаны без учета климатических особенностей вашего региона. Согласитесь, есть значительная разница, расположен ваш дом на севере Карелии или в районе Сочи? Адаптировать типовой вариант вам помогут в проектном бюро. Специалисты предусмотрят специальную защиту фундамента, стен и кровли, подберут подходящие размеры окон, соотнесут расположение оконных и дверных проемов с ландшафтом участка.
Адаптируя типовой проект, следует учитывать и прохождение коммуникаций по территории участка
Если всего этого не предусмотреть – в процессе стройки вы столкнетесь с многочисленными сложностями, которые не только испортят вам настроение, но и приведут к незапланированным тратам.
Как оптимизировать пространство небольшого одноэтажного дома
Есть нормы, гарантирующие комфорт проживания. Так, на каждого члена семьи должно быть не меньше 9 квадратных метров помещения. Если по каким-то причинам есть необходимость обойтись этим минимумом, можно рассмотреть варианты оптимизации пространства. Для этого можно совместить функциональное назначение комнат. Например, в спальне разместить рабочий кабинет, или разделить детскую комнату на игровую зону и зону отдыха:
В решении этой задачи вам на помощь придут производители трансформирующейся мебели. Особенно много вариантов детской мебели, которая легко превращается в стол или шкаф.
Вы можете использовать и подвижные перегородки для временного зонирования, устанавливать подиумы
С помощью грамотной планировки можно без труда выделить место под дополнительный санузел.
В загородном доме неплохая идея – сделать дополнительный выход из спальни в сад или на террасу.
Значительно сэкономит пространство встроенная бытовая техника
Минусы такого проекта
Одноэтажные строения обладают множеством преимуществ, но выделяются и недостатки:
- На этапе проектирования коттеджей с большой площадью могут возникнуть трудности. Они связаны с необходимостью продумать пространство, чтобы проходных комнат было как можно меньше. Особенно это касается помещений для отдыха (гостевые, спальни, детские). От этого будет зависеть комфорт всех членов семьи.
- Проект дома с тремя спальнями, который обладает внушительными габаритами и имеет всего один этаж, предполагает значительные затраты на установку крыши. При таких условиях кровля может требовать частого проведения обновления или планового ремонта, что повлечет за собой новые затраты.
Основные требования к параметрам дома в один этаж
Чтобы проще было определиться с проектом будущего дома, лучше заранее продумать основополагающие требования к дому Чтобы проще было определиться с проектом будущего дома, лучше заранее продумать основополагающие требования к дому. Для этого следует определить такие моменты, как:
- Площадь дома. Тут включено все: количество комнат, подсобных помещений, а также то, какой частью участка вы готовы пожертвовать под строительство.
- Значительные перепады в рельефе потребуют дополнительной гидроизоляции, особенно, если грунтовые водоносные слои проходят достаточно высоко.
- Желаемое количество комнат также требует и достаточности санитарных зон.
- Пристройки типа гаража, складских наружных помещений тоже потребуют площади.
Если встречаются затруднения с планированием, помогут фото одноэтажных практичных домов
Если встречаются затруднения, помогут фото одноэтажных практичных домов. Такие иллюстрации наглядно продемонстрируют все возможности конструктивного размещения и эстетику готовых строений. А когда все требования учтены, можно определяться с проектом.
Оптимизация затрат
Успех строительства и дальнейшей эксплуатации дома закладывается во время составления плана. Вы можете рассматривать типовые проекты частных домов, или заказать индивидуальный план
В любом случае важно внимательно изучать предлагаемые варианты, примерять их на свои потребности и привычки
Проектирование – сложный многоступенчатый процесс, во время которого специалисты предусматривают множество важных деталей. О существовании многих из них заказчик, не связанный со сферой строительства даже не подозревает. Однако существуют нюансы, которые позволяют оценить грамотность и, следовательно, выгодность проекта. Преимуществами считаются следующие особенности планировки 1-этажного дома с 3 спальнями:
Проект учитывает потребности людей всех возрастных категорий
Хотя в нем отсутствует лестница, потенциальный источник травм, важно не забывать про потребности маленьких детей и старших родственников. Большим плюсом также будет удобное (в близкой доступности) расположение помещений общего пользования. Проект с низким крыльцомИсточник mcdonaldjoneshomes.com.au
Проект с низким крыльцомИсточник mcdonaldjoneshomes.com.au
- Те же условия важны для доступа к приусадебной территории. Если в плане предусмотрено крыльцо, необходимо сделать его безопасным: позаботиться о перилах и ограждении, сделать навес для защиты от осадков, провести свет.
- Разводка труб водоснабжения и канализации просто обязана быть экономной. Ее выполняют по упрощенной схеме, что уменьшает не только строительные расходы, но и суммы в счетах за отопление. С этой точки зрения наиболее экономически выгодна планировка, в которой кухня и санузел расположены рядом, а жилые комнаты – через перегородку.
- Комфорт проживания увеличивается благодаря остеклению большой площади, а также наличию пристроек: террасы, веранды, гаража.
Образец нерациональной разводки коммуникацийИсточник domavis.ru
Важен не только комфорт, но и функциональность помещений, поэтому необходимо присмотреться к следующим деталям:
- Технические помещения располагаются с учетом требований нормативно-технической документации (они прописаны в СНиПах и ГОСТах). В противном случае возникнут проблемы с их подключением.
- В регионах с продолжительными зимами необходимо защитить дом от потерь тепла. В этом поможет коридор, снабженный тамбуром или внешняя пристройка в виде застекленной и утепленной веранды.
- Если в доме будут жить более пяти человек, понадобится второй (отдельный) санузел. Также придется подумать о логике перемещения людей.
С сауной и террасой вдоль длинной стороныИсточник karkasnik-stroy.ru
В чем заключаются особенности проектирования дома с тремя спальнями
Прежде чем приступить к процедуре проектирования, нужно определиться с назначением всех комнат. Они могут быть детскими, комнатами для пожилых людей, гостевыми или супружескими спальнями. У каждого из этих назначений есть свои особенности: необходимо понимать, как именно они будут связаны с общей зоной, как освещены и чем оснащены.
Спальни не должны быть проходными
Важный момент – организация естественной вентиляции и освещения. Последнее правило означает, что хотя бы одна стена комнаты должна быть несущей стеной здания.
Расположение комнат – существенный момент, и существует несколько решений:
План одноэтажного дома с 3 спальнями вдоль одной из стен
Вы найдете множество типовых планировок, в которых все три спальни размещены в одной из сторон дома. Гостиная и кухня расположены отдельно, и это в своем роде удачное решение, потому что ничто не помешает сну: ни музыка в гостиной, ни грохот посуды и ароматы пищи.
Есть в такой планировке свой нюанс – супружеская спальня находится слишком близко к детским комнатам, а это не самый лучший вариант
Еще один недостаток – санузел размещен далековато от спальни, так что придется по ночам путешествовать по темному длинному коридору. Да и сам коридор – нерациональное использование пространства, согласитесь.
Тем не менее, такое расположение имеет право на существование, и вот еще один пример подобного проекта:

Планировка одноэтажного дома с тремя спальнями с отдельным расположением
Отделение родительской спальни от детских комнат диктует свои условия распределения пространства. Можно совсем отказаться от коридора, отделив треть дома под детские спальни, разместив по центру гостиную и распланировав в остальном пространстве спальню родителей и санузел.

Неплохая планировка 1 этажного дома с 3 спальнями, если не принимать во внимание необходимость отказаться от поздних вечеринок. Другая идея планировки – отделение гостиной, совмещенной с кухней, в доме квадратной формы
В этом случае гостиная не будет проходной: она граничит с родительской спальней и отделена от детских. Недостаток только в необходимости тщательно продумать проводку инженерных коммуникаций. Примеры такого размещения:
Другая идея планировки – отделение гостиной, совмещенной с кухней, в доме квадратной формы. В этом случае гостиная не будет проходной: она граничит с родительской спальней и отделена от детских. Недостаток только в необходимости тщательно продумать проводку инженерных коммуникаций. Примеры такого размещения:
Общие принципы планирования
Прежде чем приступить к проектированию, стоит учесть ряд аспектов. Продумав детали сразу, можно избежать неудобств
Сначала внимание уделяется анализу уклона и геодезических особенностей территории, где будет строиться коттедж. Определяется место для расположения двора, гаража и других дополнительных построек
Нахождение в таком климате, где холодные зимы, требует при планировке дома с тремя спальнями учесть наличие тамбура. Это поможет избежать попадания холодного воздуха внутрь дома при открывании входных дверей. Можно выбрать любое расположение (в пределах стен дома или в виде дополнительной пристройки), на функциональность это никак не повлияет.
Пример №1 планировки дома с тремя спальнями
Важным аспектом считается подведение канализации и простота инженерной системы. Для снижения затрат и количества материалов, стоит располагать такие помещения, как ванная комната или туалет, рядом. Если в коттедже будет жить более трех человек, нужно продумать наличие двух санузлов.
На этапе проектирования стоит оговаривать расположение мебели крупных размеров. Это позволит без проблем поставить кровати и шкафы в выбранном месте, когда дом уже будет построен.
https://youtube.com/watch?v=DrxJMIbo1Qo
Если все три спальни разместить рядом
В проектировании одноэтажного дома, где три спальни находятся друг возле друга, наблюдаются как положительные, так и отрицательные моменты. К плюсам относится то, что комнаты отдыха размещены далеко от кухни и гостиной, где шумно.
Не каждому будет по душе столь близкое нахождение спален. В случае, когда будущий хозяин коттеджа предпочитает уединение, стоит продумать о видоизменении проекта дома.
Выгодные моменты проекта одноэтажного дома: фото красивых коттеджей
Разработать план одноэтажного коттеджа можно самостоятельно или воспользоваться типовыми проектами домов с тремя спальнями, предлагаемыми разными компаниями. Одноэтажное частное строительство для больших семей, где могут ужиться люди различных возрастных категорий, имеет массу преимуществ, среди которых:
- значительная экономия строительных материалов – нет необходимости укреплять межэтажные перекрытия и дополнительно приобретать материалы для стен последующих этажей. Кроме того, затраты на фундамент строения будут гораздо ниже;
- отсутствие лестницы, которая занимает часть полезной площади и является дорогим сооружением;
- продуманная планировка – все технические помещения располагаются в близкой доступности для пожилых членов семьи, детей, а также людей, физические возможности которых ограничены;
- легкий доступ к приусадебной территории и саду, что имеет немаловажную роль для старших членов семьи;
- экономия энергоресурсов – разводка всех коммуникаций в одноэтажном доме выполняется по упрощенной схеме, что уменьшает расходы, в частности, на проведение трубопроводов системы отопления в частном доме, а в будущем сами расходы на оплату счетов за отопление.
Еще одним достоинством одноэтажных построек является разнообразие архитектурных решений. Существует масса оригинальных проектов в различных стилях: от классического до современного, о чем свидетельствуют многочисленные фото загородных коттеджей. В одноэтажных конструкциях можно реализовать идею остекления большой площади, а также обустройства уютной террасы или пристройки гаража.
Полезный совет! Использование готовых типовых проектов одноэтажных домов поможет избежать ошибок при самостоятельном проектировании коттеджей.
Особенности проектов одноэтажных домов до 150 кв.м с тремя спальнями без мансарды
Если проекты зданий до 100 м? нуждаются в расширении пространства за счет установки дополнительных конструкционных элементов, то планировка частного дома с площадью до 150 кв. м уже может обойтись без организации мансардного или цокольного этажа. Здесь можно использовать метод объединения пространства.
Дом без мансарды с площадью 100-150 кв.м с комфортом разместит семью с двумя-тремя детьми
Распространенные примеры совмещения:
- объединение санузла;
- объединение в одном помещении кладовки и котельной (этот метод встречается нередко, однако с точки зрения норм безопасности, нельзя считать такую планировку верной);
- соединение пространств гостиной и столовой, кухни и гостиной, кухни и столовой.
Лаконичный дизайн детской комнаты для девочки
Если вы используете метод совмещения пространства, будьте готовы к тому, что потребуется увеличение каждой комнаты примерно на толщину стены или перегородки, при условии, что этот показатель составляет не менее 0,1 м.
Пример планировки одноэтажного дома с тремя спальнями и объединением комнат
Ниже представлен проект дома с тремя спальнями, в одной из которых размещена гардеробная. Как видно на плане, главный вход в здание расположен по центру фасада. С обратной стороны находится терраса с угловым типом размещения, на которую обустроено два выхода – один из гостиной, второй – из хозяйской спальни.
Проект 2. Фасад одноэтажного дома и вид на главный вход
Благодаря длинному коридору, соединяющему все жилые помещения дома, ни одна из комнат не является проходной. Спальни обладают достаточной площадью для того, чтобы организовать спальное место, гардеробную и рабочую зону. Условно дом может быть разделен на две зоны: ночную и дневную. В передней части дома (где располагается вход с крыльца) размещены все помещения бытового назначения.
Проект 2. Вид на террасу и задний двор
Здесь мы видим:
- прихожую с гардеробом и входом в прачечную;
- кухню, частично открытую в сторону гостиной-столовой;
- одну общую просторную ванную комнату.
На схеме проекта видно, как удачно совмещены пространства гостиной, кухни и столовой. Этот участок может использоваться в качестве одной большой зоны для отдыха в кругу друзей и семьи. Все необходимое для приготовления ужина, самой трапезы и общения в комфортных условиях перед телевизором находится под рукой. Благодаря такому решению, в доме образовался небольшой холл, отделяющий комнаты, предназначенные для отдыха. Примечательно еще и то, что все спальни ограждены от неприятных запахов, которые могут идти с кухни.
Проект 2. Планировка дома с 3 спальнями и террасой
Второй пример удачного совмещения пространства
В некоторых случаях для комфорта может потребоваться другой вид планировки. Данный проект общей площадью в 106,7 м? подойдет для семьи, в которой есть дети разных возрастов. Это можно увидеть на схеме, проанализировав особенности размещения спален.
Удобства определяются следующими моментами:
спальня родителей обладает достаточным количеством места для установки большой кровати, она имеет отдельную гардеробную комнату, выход на большую террасу, предназначенную для совместного отдыха с семьей, оснащена телевизором;
Проект 3. Вид на фасад одноэтажного дома с гаражом и дополнительным парковочным местом
- напротив родительской спальни может располагаться комната младшего ребенка, позволяющая организовать спальное место, рабочую зону. Здесь имеется гардероб;
- комната старшего ребенка отделена от второй детской помещением санузла. В ней имеется все необходимое: гардероб, рабочий стол, спальное место;
- все помещения спален выходят в небольшой холл, где может быть установлен общий гардероб.
Проект 3. Вид на задний двор с террасой и бассейном
В этом случае помещения столовой, гостиной и кухни также совмещены между собой. К кухне примыкает небольшая комната, отведенная под кладовую. Благодаря удаленности этой зоны лишние шумы и запахи не будут создавать проблем проживающим в доме.
Особенно примечательна концепция создания гаража. Проект подразумевает наличие площади под размещение сразу двух автомобилей. Причем одно парковочное место защищено крышей и располагается прямо перед входной дверью, другое имеет вид капитального гаража с роллетами, из которого можно попасть в дом через прачечную.
Проект 3. Планировка дома с тремя спальными комнатами
Проекты одноэтажных домов с гаражом: фото-примеры для выбора
Разработка проектов домов, включающих гаражное помещение, в первую очередь основана на обеспечении максимального комфорта для проживающих. Как правило в таких вариантах предусмотрено наличие двух входов, один из которых ведет на улицу, а второй – непосредственно в дом. Такая планировка очень удобна, особенно в холодные и дождливые сезоны, когда, поставив автомобиль, можно сразу зайти в дом.
Наличие гаражного помещения избавит вас от беспокойства за припаркованный автомобиль, к тому же гаражное хранение считается существенным плюсом в вопросах по уходу за авто. Имея гараж, можно в комфортных условиях произвести некоторые виды работ по техническому обслуживанию машины: заменить масло или сделать сезонную замену покрышек.
Одним из дополнительных преимуществ коттеджей с пристроенным гаражом является возможность хранения там не только автомобиля, но и различных инструментов и инвентаря. Не исключен вариант организации в гараже мелкого производства, что тоже достаточно удобно. Размещение в гараже котельной значительно сэкономит полезную площадь.
Выбирая из различных проектов подходящий вариант, обратите внимание на наличие тамбура при входе в дом из гаража. Такое проходное пространство станет гарантией того, что при запуске двигателя авто или проведении работ, в дом не проникнут вредные газы и запахи
Некоторые проекты предполагают гараж для двух машин.
С коридором
Проект дома с тремя спальными помещениями подразумевает, что в доме будут жить дети и многие родители предпочитают, чтобы детская была вдали от родительской спальни. Что не лишено смысла.
Если разделить дома на 3 части, возможно создать планировку без коридора:
- Детская;
- Кухня и зал;
- Спальня и совмещенный или раздельный санузел.
Таким образом получается, что спальные пространства разделяет гостиная и они находятся на разных сторонах дома. Минус такого проекта – спальная комната родителей находится рядом с входной дверью и санузлом, что может быть не очень удобно.
Второй вариант подобного проекта – дом с коридором. Если отдать часть помещения под коридор, то родительская спальная будет более изолированная.
Самая удобная планировка такого дома – когда вход в каждую из спален осуществляется из общего коридора
Санузел можно перенести ближе к детским и расположить его между этими двумя спальнями. Но можно сделать гостиную чуть меньше. В коридоре можно установить гардеробную для детей, что также позволит увеличить площадь спален.
Минус такого проекта – кухня и санузел расположены далеко друг от друга, а это значит, что канализационная и водопроводная система будут сложнее организованы. В свою очередь, это лишние затраты.
Как правильно выбрать проект?
Есть несколько правил подбора типового проекта 1 этажного дома с 3 спальнями, которые помогут вам сделать оптимальный выбор:
начните с допустимой площади дома – для этого изучите размеры участка. Вряд ли вам удастся построить полноценный дом в 200 квадратных метров, есть у вас в наличии всего три сотки земли. Строительные нормы диктуют необходимость отступить от границ участка до стен дома 3 метра и от дороги – 5. Подумайте, сколько места вам нужно для сада, где будут находиться хозпостройки, и не слишком ли близко к вам расположен деревянный дом соседа – вдруг пожар? Если вы рискнете построить дом вопреки существующим пожарным и санитарным нормам, не исключено, что после ссоры с соседями вы получите предписание суда снести строение;
Если рядом есть водоем – то сразу узнайте, не разливается ли вода в путину. Не рискуйте строить дом слишком близко к берегу: следует отступить как минимум метров 50
после вычисления свободной для постройки площади определитесь с необходимым количеством помещений и их назначением. Подумайте, в какой стороне лучше разместить детские и кухню;
Изучите место прохождения инженерных коммуникаций по участку и возможность подключения к ним
и только после двух предыдущих этапов начинайте рассматривать каталоги типовых проектов. А отсеяв большую часть из них как неподходящую под ваши требования, вы можете дать волю фантазии. Но не забывайте про комфорт!
Особенности
Коттеджи, площадь которых насчитывает до 150 кв. м – идеальное сочетание свободного пространства и относительно недорогого обслуживания. В проектах одноэтажных домов с тремя спальнями предусматривается достаточное количество полезного пространства. Наличие нескольких спален, просторной гостиной и кухни обеспечивает комфорт.
Пример №2 одноэтажного дома с тремя спальнями
Дома подобной площади позволяют проявить фантазию в планировке и дизайнерском подходе. Затраты на стройку можно считать приемлемыми. Если нет возможности накопить на коттедж, большинство банков готовы выдать ипотеку под такой тип жилья. Считается, что дом рассматриваемой площади не только легче построить, но и проще продать при необходимости. Проживание в собственном загородном коттедже прекрасно подходит для многодетных семей или для тех, кто постоянно принимает у себя большое количество людей.
Этап проектирования включает в себя также выбор строительных материалов. К примеру, постройка дома из кирпича обладает преимуществами, из которых выделяется практичность и надежность. Затраты на строительство небольшого одноэтажного коттеджа сравнительно невелики. Устройство перекрытий и отделка обходится дешевле и имеется достаточное количество помещений в доме.
Если площадь коттеджа менее 100 кв. м, то для расширения пространства может потребоваться возведение дополнительных элементов, например, мансарды или цокольного этажа. Но в случае, когда проект рассчитан на большие размеры, уже не понадобится дополнительных пристроек. Будет претворена в жизнь такая планировка, которая учитывает все детали и пожелания.
Важные нюансы
Чтобы пространство дома с 3 спальнями было удобным каждому из жильцов, следует обратить внимание на все факторы, влияющие на процесс создания проекта. Чтобы планировка дома была такой, как желают хозяева, все детали следует обсудить с архитектором и дизайнером, которые создают проекты домов
Чтобы спальни были удобны, и их можно было нормально обустроить, следует выделять под помещение не менее 10 квадратных метров. Хотя такой метраж и не велик, все же в пространстве таких комнат получится уместить все необходимое для полноценного отдыха и комфорта.
3D проект одноэтажного коттеджа с тремя спальнями
Комнаты 3х3 метра и более 12 квадратных метров по размеру позволят в полной мере пустить в ход фантазию и реализовать все идеи, касательно преображения пространства и организации расстановки предметов интерьера в комнатах для отдыха и сна.
Коллекция популярных проектов домов с тремя спальнями
Мы подобрали для вас небольшую коллекцию популярных типовых проектов, которые можно адаптировать под климатические особенности региона. Посмотрите, возможно среди них – дом вашей мечты.
Проекты одноэтажного дома с 3 спальнями из кирпича
Кирпич – самый надежный и долговечный материал для строительства. Из него вы сможете построить здание любой формы. Вот несколько типовых проектов домов с 3 спальнями и гостиной:
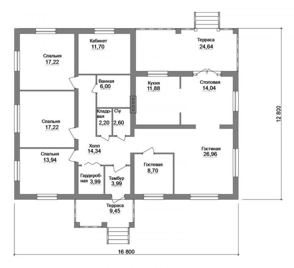
Вот интересный вариант плана одноэтажного дома 10×12 с тремя спальнями, который подойдет для семьи с детьми:
Планировка деревянного одноэтажного дома с 3 спальнями
Мода на экологичные деревянные дома – на самом пике. Предлагаем вашему вниманию интересный проект деревянного одноэтажного дома с тремя спальнями:
Проект каркасного одноэтажного дома с тремя спальнями для семьи из 4 человек
Если место для строительства и бюджет ограничены – выбирайте каркасную технологию. Всего за миллион-полтора вы сможете построить добротный теплый дом для всей семьи. Для примера проект одноэтажного дома 10×10 с тремя спальнями:
Проект одноэтажного дома с 3 спальнями и гаражом
Загородный дом обязательно должен иметь гараж для автомобиля. Можно разместить его отдельно или, в целях экономии, предусмотреть одноэтажный дом с тремя спальнями и встроенным гаражом:
Проект одноэтажного дома на три спальни с верандой
Веранда в загородном доме – непременный атрибут. Вот удачный план 1 этажного дома с 3 спальнями и верандой:
Остановитесь ли вы на одном из этих типовых проектов или разработаете собственный – главное, чтобы были учтены пожелания всех членов семьи. Собственный дом – это не только комфорт, но и большая ответственность, так что подходите к выбору лучшего проекта одноэтажного дома с тремя спальнями со всей серьезностью.
Еще несколько нюансов выбора проекта дома в этом видеоматериале:



























































