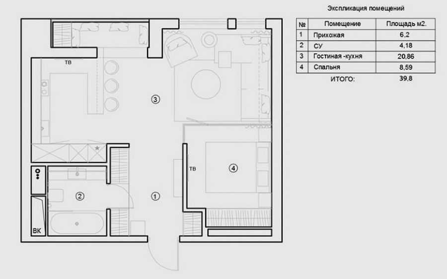
Варианты перепланировок однокомнатной квартиры
Существуют разные варианты перепланировок квартир, одни связанны со сносом стен, другие же могут осуществляться с возведением дополнительных. Чаще всего для постройки стен, а точнее перегородок используют современный гипсокартон. При помощи него легко можно разделить одно пространство на два. Тем же способом можно легко осуществить и не глухие перегородки, тем самым реализуя частичную перепланировку — зонирование.
Но помните, дополнительные стены в интерьере однокомнатной квартиры и без того небольшой по площади, сократят ее свободное пространство еще больше.
Поэтому люди часто с целью расширения пространства осуществляют демонтаж стены между кухней и гостиной, и кухней и прихожей.
Перепланировка типовой однокомнатной квартиры фото
Объединение кухни с гостиной в однокомнатной квартире
Квартиры студии сегодня пользуются большой популярностью, это модно и такая планировка позволяет иметь большое пространство, не обремененное дополнительными стенами. Но такой вариант мало подходит для семейной жизни, это скорее молодежный вариант, так же он великолепно подойдет для творческих людей.
В таких планировках в качестве зонирования используют барную стойкудиван и др. Барная стойка между кухней и гостиной это весьма удобный и модный способ разделить квартиру на две части. При этом она останется такой же просторной, как и без нее.
Перепланировка однокомнатной квартиры фото
Пример перепланировки однокомнатной квартиры фото
Другой вариант это межкомнатные перегородки, они бывают раздвигающиеся, что очень удобно, ведь при необходимости их всегда можно закрыть или открыть, разделив или объединив пространство кухни и гостиной.
Варианты перепланировки однокомнатной квартиры фото
Фото перепланировки однокомнатной квартиры
Объединение кухни с прихожей
Если позволяет планировка, и конструкция стен, то можно кухню сместить в прихожую, тем самым увеличив ее площадь, а на освободившемся пространстве можно расширить гостиную. Такой вариант часто можно встретить в современных квартирах, где кухня и гостиная изначально объединены, при этом имеется еще одна комната — спальная. В итоге данную квартиру студию можно превратить в двухкомнатную квартиру, если еще гостиную отгородить от кухни.
Перепланировка однокомнатной квартиры
Два выше описанных варианта наиболее реализуемы в типичных современных квартирах, ведь зачастую сложность перепланировки заключается в переносе кухонных коммуникаций, поэтому редко получается осуществить координальную перепланировку однушки.
Дизайн перепланировка однокомнатной квартиры фото
Варианты перепланировки однокомнатной квартиры с устройством доп. перегородок
Как уже упоминалось выше, перегородки из гипсокартона сегодня широко применяются для обустройства квартиры. Давайте рассмотрим, как при помощи них можно осуществить перепланировку квартиры
Чаще всего в стандартной планировке, устанавливают гипсокартонную перегородку ближе к окну, выделяя место у окна под спальную зону. А пространство в гостиной ближе ко входу в комнату отдают под гостиную. Но в данном случае возникает одна проблема, при сплошной перегородке из гипсокартона гостиная остается затененной. В этом случае есть несколько вариантов решения проблемы:
- Сделать перегородку из гипсокартона с окнами
- Сделать перегородку не до потолка или не на всю ширину комнаты — фальш-перегородка
- Использовать в место гипсократона, стеклоблоки — пропускающие свет, или стеклянные раздвижные перегородки.
Варианты перепланировок однокомнатной квартиры
Дизайн перепланировка однокомнатной квартиры фото
Схема перпланировки однокомнатной квартиры
Идеи перепланировки однокомнатной квартиры фото
Существуют и другие варианты перепланировок, все в большей степени зависит от изначальной конфигурации квартиры. Одни более удобны для этого дела, другие очень сложно. Перепланировка однокомнатной квартиры оправдана только в первом случае, поскольку перестроить менее удобную изначальную планировку довольно затратно
Варианты перепланировок однокомнатной квартиры
Существуют разные варианты перепланировок квартир, одни связанны со сносом стен, другие же могут осуществляться с возведением дополнительных. Чаще всего для постройки стен, а точнее перегородок используют современный гипсокартон. При помощи него легко можно разделить одно пространство на два. Тем же способом можно легко осуществить и не глухие перегородки, тем самым реализуя частичную перепланировку — зонирование.
Но помните, дополнительные стены в интерьере однокомнатной квартиры и без того небольшой по площади, сократят ее свободное пространство еще больше.
Поэтому люди часто с целью расширения пространства осуществляют демонтаж стены между кухней и гостиной, и кухней и прихожей.
Перепланировка типовой однокомнатной квартиры фото
Объединение кухни с гостиной в однокомнатной квартире
Квартиры студии сегодня пользуются большой популярностью, это модно и такая планировка позволяет иметь большое пространство, не обремененное дополнительными стенами. Но такой вариант мало подходит для семейной жизни, это скорее молодежный вариант, так же он великолепно подойдет для творческих людей.
В таких планировках в качестве зонирования используют барную стойкудиван и др. Барная стойка между кухней и гостиной это весьма удобный и модный способ разделить квартиру на две части. При этом она останется такой же просторной, как и без нее.
Перепланировка однокомнатной квартиры фото
Пример перепланировки однокомнатной квартиры фото
Другой вариант это межкомнатные перегородки, они бывают раздвигающиеся, что очень удобно, ведь при необходимости их всегда можно закрыть или открыть, разделив или объединив пространство кухни и гостиной.
Варианты перепланировки однокомнатной квартиры фото
Фото перепланировки однокомнатной квартиры
Объединение кухни с прихожей
Если позволяет планировка, и конструкция стен, то можно кухню сместить в прихожую, тем самым увеличив ее площадь, а на освободившемся пространстве можно расширить гостиную. Такой вариант часто можно встретить в современных квартирах, где кухня и гостиная изначально объединены, при этом имеется еще одна комната — спальная. В итоге данную квартиру студию можно превратить в двухкомнатную квартиру, если еще гостиную отгородить от кухни.
Перепланировка однокомнатной квартиры
Два выше описанных варианта наиболее реализуемы в типичных современных квартирах, ведь зачастую сложность перепланировки заключается в переносе кухонных коммуникаций, поэтому редко получается осуществить координальную перепланировку однушки.
Дизайн перепланировка однокомнатной квартиры фото
Варианты перепланировки однокомнатной квартиры с устройством доп. перегородок.
Как уже упоминалось выше, перегородки из гипсокартона сегодня широко применяются для обустройства квартиры. Давайте рассмотрим, как при помощи них можно осуществить перепланировку квартиры
Чаще всего в стандартной планировке, устанавливают гипсокартонную перегородку ближе к окну, выделяя место у окна под спальную зону. А пространство в гостиной ближе ко входу в комнату отдают под гостиную. Но в данном случае возникает одна проблема, при сплошной перегородке из гипсокартона гостиная остается затененной. В этом случае есть несколько вариантов решения проблемы:
- Сделать перегородку из гипсокартона с окнами
- Сделать перегородку не до потолка или не на всю ширину комнаты — фальш-перегородка
- Использовать в место гипсократона, стеклоблоки — пропускающие свет, или стеклянные раздвижные перегородки.
Варианты перепланировок однокомнатной квартиры
Дизайн перепланировка однокомнатной квартиры фото
Схема перпланировки однокомнатной квартиры
Идеи перепланировки однокомнатной квартиры фото
Существуют и другие варианты перепланировок, все в большей степени зависит от изначальной конфигурации квартиры. Одни более удобны для этого дела, другие очень сложно. Перепланировка однокомнатной квартиры оправдана только в первом случае, поскольку перестроить менее удобную изначальную планировку довольно затратно
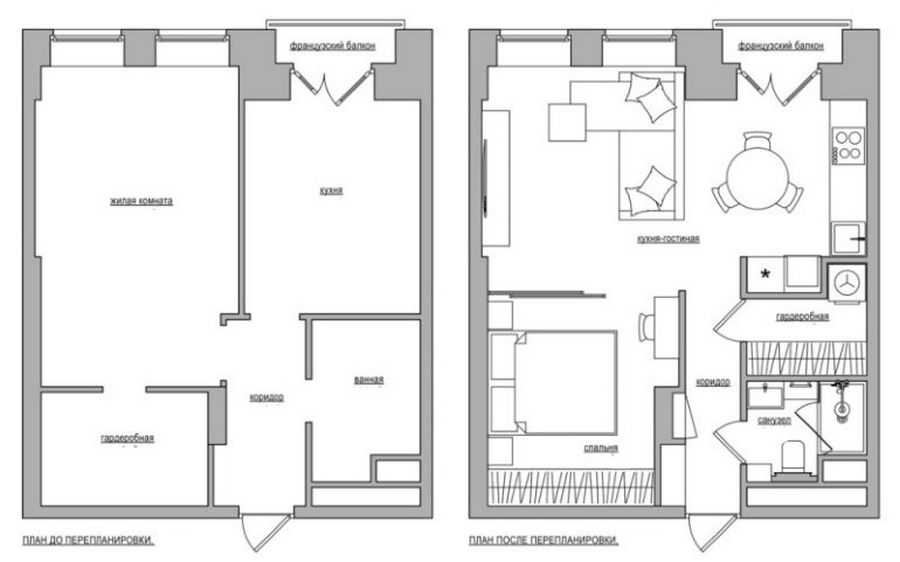
Однушку в двушку: популярные варианты перепланировки
«Затевать перепланировку однушки в двушку можно и нужно, если общая площадь квартиры насчитывает хотя бы 40 квадратов»
Перекроить однокомнатную квартиру, передвинуть в ней стены, адекватно отделать – даже при наличии утвержденного плана – будет делом нелегким. Малогабаритное жилье в прямом смысле не дает развернуться. Затевать перепланировку однушки в двушку допустимо и нужно, если общая площадь квартиры насчитывает хотя бы 40 квадратов. В меньших пространствах сделать из однушки действительно уютную двушку будет архисложно.
Идей по изменению внутреннего пространства жилья предлагается много, но в основном они отличаются дизайнерским решением. В основу перепланировки заложены стандартные решения. Какое из них будет выбрано – зависит от исходных параметров видоизменяемого жилья.
Вариант 1
Наиболее популярным видом трансформации однушки в двушку является создание квартиры-студии. Особенно нравится подобный подход молодежи, симпатизирующей современным направлениям оформления интерьеров.
Объединение пространства кухни и гостиной
Планировка такого жилья предполагает выделение в отдельную комнату спальни и объединение в единое пространство площадей гостиной и кухни. Разделение последней, при перепланировке однушки в двушку, чисто символическое. Без использования раздвижных перегородок и штор. Зоны принято разграничивать: разной фактуры отделкой, игрой цветов, архитектурными элементами. Например, в кухонной части может быть приподнят пол и на входе в нее образована ступенька.
Организация спального места
Создавая из однушки уютную двушку-студию, важно использовать только модерновую отделку. В интерьере должна появляться исключительно современная мебель, желательно привлекающая нестандартностью своей конструкции или дизайна
В такой квартире должен царить абсолютный порядок. Обилие декора и просто бардак лишит интерьер свежести, украдет пространство и вообще сведет его эффектность на нет.
Не перегружайте пространство большим количеством декора
Нужно учитывать, что используя этот вариант преобразования однушки в двушку, жильцам придется терпеть определенные неудобства, а именно – разносящиеся по гостиной запахи кухни. Но если никого из квартирантов это не смущает, то в остальном – решение вполне комфортно.
Вариант 2
Он предлагает из однушки сделать двушку посредством передела комнаты гипсокартонной стеной, с последующим переносом межкомнатных дверей. Об использовании кирпичной кладки речь в квартирах обычно не ведется. Такая стена будет тяжела и усилит нагрузку на межэтажное перекрытие.
Деление комнаты гипсокартонной перегородкой
Эта идея перепланировки онушки в двушку может и должна быть взята за основу, если комната крупногабаритна и в ней предусмотрено два окна. В этом случае есть шанс получить два полноценных, возможно даже изолированных пространства, площадь которых можно задействовать по своему усмотрению.
В малогабаритных комнатах также можно поставить перегородку, но не гипсокартонную, а преобразовать однушку в двушку при помощи стекла. За стеной из стеклоблоков можно обустроить кабинет или миленькую спальню.
Вместо стационарного перестенка можно установить раздвижные панели из стекла. Удачным дизайнерским ходом будет использование витража.
Зонирование пространства раздвижными стеклянными панелями
Наиболее сложна перепланировка квадратной однушки в двушку. Единственное окно и пропорциональные стены очень ограничивают варианты дизайна и организации пространства.
Вариант 3
Менее популярный, но все же пользующийся спросом способ преобразования однушки в двушку – задействование штор. Используя данный прием, можно получить две комнаты без крушения стен и кучи согласований. За плотной тканевой перегородкой можно организовать уютный спальный уголок или комфортную рабочую зону. Текстильная ширма не крадет пространство, зато высоко функциональна и при необходимости может быть убрана одним движением руки.
Тканевая перегородка отделяет спальню от гостиной
Вариант 4
К делу получения из однушки уютной двушки привлекается мебель. Роль разграничителей пространства берут на себя высокие стеллажи, шкаф и прочие предметы обстановки. Главное, чтобы они не были громоздкими, и их присутствие было оправдано потребностью дизайна интерьера.
Стеллаж в роли разделителя пространства
В общем, из однушки сделать двушку вполне реально. Главное иметь желание, не бояться подключать фантазию и использовать качественные отделочные материалы. Оригинальный план и его грамотное воплощение позволит обжить даже столь скромную квартиру с максимальным комфортом.
Интересные идеи дизайна
Чтобы не оставаться голословными, предлагаем вашему вниманию несколько любопытных и нестандартных примеров преобразования однокомнатной квартиры:
зонирование с помощью мебели можно осуществить не только с использованием высокого шкафа или стеллажа – используйте барную стойку, чтобы отделить кухонное пространство от зоны, предназначенной для приема гостей. Барная стойка не будет визуально «съедать» место, как это неизбежно сделал бы шкаф, однако определенная граница между зонами будет обозначена.
Ту же функцию с успехом может выполнить и угловой диван. Достаточно поставить его не вдоль стен, как это делается обычно, а в середине комнаты, тем самым определенная часть помещения будет «отсечена» от основной. Кроме того, не забывайте о том, что сегодня мебель выпускают не только стандартных форм и размеров.
Можно в этом случае просто ограничиться покупкой двухъярусной кровати с диваном на «первом этаже». А разноуровневый пол точно станет запоминающейся изюминкой вашей квартиры, поскольку это довольно редкое явление для стандартных однокомнатных квартир;
Еще больше вариантов перепланировки смотрите в следующем видео.
Зонируем пространство: простые и сложные перегородки
Если же площадь помещения позволяет, можно быстро, сравнительно дешево и без согласований установить надежную перегородку из гипсокартона с дверью в любом удобном месте. В роли несущего элемента такой конструкции выступает обычный металлический профиль. Для большей комфортности можно между листами сделать звукоизоляционный слой. После завершения работ, которые являются достаточно несложными и под силу большинству опытных мастеров, можно сразу обустраивать полученные комнаты. Если в дальнейшем захочется реализовать другие идеи или понадобиться продать квартиру – проще вернуть ее в исходное состояние, чем вносить изменения в техпаспорт, перегородку несложно демонтировать.
Вместо перегородки можно также использовать шкаф-купе, куда заодно можно сложить огромное количество полезных вещей. Огромное количество компаний предлагают услуги по изготовлению и установке таких конструкций, причем ограничений для конфигурации практически нет. Лучше, если шкаф будет открываться с двух сторон, чтобы содержимым могли пользоваться обитатели каждого из помещений.
Как вариант — прямо в шкафу можно сделать дверь и небольшой застекленный проем для проникновения дневного света.
Особенность и сложность задачи
Как правило, однушки не обладают большой площадью. Только одно помещение отводится под жилую комнату и если площадь менее 44 кв. м, то разграничить функциональное пространство довольно сложно. Но все же существуют способы выполнить перепланировку.
Варианты перепланировки 1 комнатной квартиры практически все основываются на:
- присоединение балкона;
- перенесение кухни;
- разделение перегородкой комнаты;
- в редких случаях постройки второго уровня.
Конечно же, если однокомнатная квартира имеет площадь 45 м2, то, скорее всего, жилая комната или кухня довольно большие. Если жилплощадь весьма просторная, то часть комнаты можно отгородить для той же детской или гостиной.
Если же кухня площадь 12 кв. м, то лучше попробовать отвести ее под жилую комнату. Но здесь встает вопрос, а разрешат ли. Ведь в законе четко прописаны разрешения, запреты, отступать от которых не рекомендуется. Рассмотрим этот вопрос подробнее.
Преимущества обращения в «2Проектор»
Чтобы перепланировка вашей квартиры была проведена быстро и беспроблемно, лучше обращаться в проверенные и известные компании. Специалисты организации «2Проектор», которая успешно функционирует на рынке уже двадцать лет, предлагают комплексный пакет услуг:
- изучение технических возможностей конкретного жилого помещения
- подготовка оптимального проекта перепланировки и технического заключения
- помощь в согласовании перепланировки в Мосжилинспекции
- внесение изменений в технический паспорт в БТИ и изменение данных в ЕГРН
Благодаря высокому профессионализму сотрудники «2Проектор» могут помочь узаконить несогласованную перепланировку квартиры, осуществленную прежде (в том числе и в случае перехода жилья по наследству). Среди специалистов компании – опытные юристы, которые специализируются на жилищном праве, кадастровые инженеры и проектировщики.
Квалифицированные специалисты компании помогут решить все возникшие проблемы и в случае невозможности внесения изменений предложат заказчику альтернативы. Сотрудники соблюдают все требования законодательства, поэтому процесс согласования перепланировок отличается отлаженностью и быстротой (узаконивание переустройства займет не более двух месяцев). Ценовая политика «2Проектор» отличается лояльностью – оплачивать оказанные услуги можно поэтапно.
Для того чтобы получить полную консультацию по согласованию и проведению перепланировки в вашей четырехкомнатной квартире, свяжитесь с нами через форму обратной связи на сайте или позвоните по указанным телефонам.
Превращаем в студию
В последнее время огромной популярностью пользуются квартиры-студии, они представляют собой современный тип жилья, в котором перегородки между комнатами выполняются с помощью стоек, стеллажей и легких ширм. Невысокая стена из гипсокартона не только оригинально разделит помещение, но и сделает его уютным. При этом зону гостиной и место приготовление пищи хорошо разделить декоративной аркой. Такая перепланировка должна состоять также из зонирования напольным покрытием: на кухне можно уложить керамическую плитку, а в гостиной ламинат или паркет.
Таким образом, устанавливая перегородку в однокомнатной квартире, получится стильная студия, состоящая из гостевой, кухни и спальни. Все комнаты приобретут вид квадратов. Пространство гостевой лучше всего разместить возле окна и наполнить его такими основными предметами, как шкаф, стол, диван, кресло и телевизор.
Что же касается кухни, то для ее оформления часто используются примеры дизайна с барной стойкой. Стоит заметить, что данная конструкция подходит для квартир с площадью не менее 40 кв. м. Если же в помещении не хватает места для ее установки, то можно просто выполнить монтаж подвесного потолка с подсветкой и красиво расставить бытовую технику, шкафы для посуды и плиту.
Спальня в студии не считается отдельной комнатой, она представляет собой удобное место для сна, отдаленное ширмой или легкой перегородкой. Для кровати в этой зоне можно создать специальный подиум.
Как разделить комнату на две зоны, варианты и способы зонирования
Самыми популярными способами сделать двухкомнатную квартиру из однокомнатной являются разделение комнаты на гостиную и спальню.
Гостиная и спальня
Вы можете отделить одну комнату от другой кирпичной, гипсокартонной стеной, стеклоблоками или при помощи мебели (см фото). Первый вариант вынудит вас столкнуться с государственными органами, которые следят за тем, чтобы владелец жилища ненароком не снёс несущие стены.
Попросту говоря, при условии возведения капитальной стены, вам необходимо будет пройти процедуру узаконивания перепланировки. Поэтому наименее конфликтными являются три последних варианта.
Переделка однокомнатной квартиры на две комнаты при помощи:
Гипсокартона
Перегородка из гипсокартона позволяет сделать одну из комнат глухой, то есть без естественного освещения. Такое помещение с точки зрения уединённости и отсутствия раздражителей в виде дневного света, будет оптимальным решением для спальни (примеры на фото). Ввиду отсутствия естественного света, следует максимально обеспечить искусственное освещение. Лучшим решением для такой комнаты будут не люстры, а точеные светильники, установленные по периметру потолка, а также бра и торшеры.
Стеклоблоков
Этот вариант оформления перепланировки достаточно выигрышен, так как позволяет сохранить естественное освещение в отделяемом помещении. Ввиду высокой прочности данного материала, он рассматривается дизайнерами как наиболее вероятный вариант.
С помощью мебели
Данный способ как из однокомнатной квартиры сделать двухкомнатную, является декоративным, так как в этом случае вам не удастся добиться полного эффекта создания автономных комнат. Кроме того, уровень звукоизоляции не позволяет называть комнату, отделённую методом установки мебели, отдельной (см фото). Преимуществом в этом случае является то, что вентиляция отделяемого помещения будет более естественной, циркуляция воздуха в обоих помещениях не будет нарушаться.
Кроме того, в случае разделения комнаты методом установки стены из гипсокартона и стеклоблоков вам следует задуматься о том, чтобы дверной проём был достаточно большим, так вентиляция в такой комнате тоже отсутствует.
Территория детства
Если высота потолков в вашем жилище выше 2,5 м, в однокомнатной квартире можно соорудить второй этаж, предоставив его в качестве комнаты детям. Такая импровизация позволит разделить её на зоны игрового пространства и спального места ребёнка. Кроме того, в целях экономии пространства, лестницу, ведущую на верхний этаж, можно сделать небольшими тумбами-ступеньками для хранения игрушек, книг или белья фото. Такое оформление комнаты позволит вам сделать как спальное, так и игровое (рабочее) место для ребёнка.
Сделать из однокомнатной квартиры две комнаты также будет актуальна для семей с разнополыми или разновозрастными детьми. Вы можете оформить жилое пространство для каждого ребёнка индивидуально, в зависимости от его пола и возраста. Так в детской комнате мальчикам подходит трек с машинками и зона для игры с конструктором, девочке необходимо место для кукольного домика и стоянка для волшебных пони.
Если малышам дошкольного возраста хватит детского столика для рисования с упаковкой карандашей и фломастеров, то школьникам понадобится серьёзное рабочее место. Эти и другие особенности можно учесть при переделке комнаты в квартире под детскую комнату для мальчика и девочки либо для детей разных возрастов.
Кроме того, если у вас нет других вариантов, как жить с детьми в одной комнате, можно оформить зонирование таким образом, что в одной комнате будет заключено и взрослое, и детское жизненное пространство.
Особенности перепланировок 4-х комнатных квартир
Перепланировка в четырехкомнатных квартирах имеет немало особенностей. Для начала всё зависит от здания, где находится квартира, т. к. перепланировку в старых постройках сделать бывает потруднее, там существует немало несущих стен. А вот в новых постройках всё рассчитано как раз на несущие, поскольку используются лёгкие конструкции и большие пролёты между стен.
Важно! Примененные материалы, технологии, инженерное оборудование здания при перепланировке крайне важны
Т. к. несогласованные, необдуманные действия нередко приводят к плохому результату – неудачная перепланировка может нанести вред всему зданию, ведь его системы взаимосвязаны друг с другом.
Готовые схемы проектов переделки однокомнатной квартиры в двухкомнатную разной площади
При перепланировке в 38 м² учитывается все до мелочей. Для такой квартиры лучше всего подойдут такие стили, как хай-тек, скандинавский или кантри. При использовании одного из стилей в квартире будет уютно и просторно
Важно заранее все распланировать, как из однушки сделать двушку и постепенно начать перестройку. Главное, выбрать подходящий вариант и тем самым можно преобразить свою жилплощадь
Спальная зона выделена в отдельную комнату. Большая часть пространства досталась кухне-гостиной, в которой раскладной диван служит дополнительным местом для сна
При 40 м² комнаты могут быть открытыми, что придаст квартире неповторимый вид. При перепланировке в любой интерьер можно внести «изюминку» и тогда все будет смотреться изящно и красиво. Каждому хозяину квартиры можно создать индивидуальный проект и решить как из однушки сделать двушку 40 м². Разграничивая помещения в квартире нужно сделать так, что все было компактно расставлено.
Приватное место для ночного отдыха размещено за стеклянной перегородкой, что позволило сохранить в спальне естественное освещение
При 43 м² будет уютно, если разграничить основную комнату перегородкой. У тех, у кого есть дети сделать для них игровую комнату. Если владелец проживает один, то ему можно создать уютное офисное помещение. Все гармонично сочетаться в соответствие с установленными правилами.
Комната с двумя окнами разделена на спальную и гостиную зоны, последняя отделена от кухни барной стойкой
При 45 м² в одной комнате можно установить кровать и диван без потери основного стиля. Вторая половина может быть занята кухней в американском стиле. Здесь можно все разграничить так, чтобы уместились:
- напольные вешалки;
- небольшие шкафчики;
- напольный торшер;
- столик;
- диван и т.д.
Благодаря перепланировки удалось организовать просторную кухню-гостиную и уютную спальную зону с небольшим гардеробом
При 50 м² может получиться в одной половине уютная спальня, а в другой отдельный уголок отдыха. В качестве перегородки можно поставить прозрачные. Это придаст помещению современный, презентабельный вид. В квартире может быть объединена кухня с гостиной и отдельная спальня. Все это может быть удобным вариантом для семейной пары.
Функциональный интерьер с достаточно большой спальной комнатой, кухне-гостиной и рабочим кабинетом на утепленной лоджии
При перепланировке 55 м² можно сделать интерьер в швейцарском стиле, использовав светлые оттенки. Интерьер лучше не перегружать лишними деталями, а повесить украшения на стены и потолок. Если даже дизайн простой, то интерьер может получиться стильный и современный.
Переделка кухни позволила организовать детскую комнату, обеденная зона вынесена на просторную лоджию, кровать родителей разместилась на подиуме за шторами
Двухуровневые квартиры и возможность подобной переделки
В домах советской постройки иногда встречается вариант очень высоких (3.5-4 м) потолков. Именно в таких помещениях можно спальное место вынести на второй уровень. Конечно, лестница на второй этаж займёт немного пространства, но оно будет несоизмеримым, к примеру, с двуспальной кроватью.

Подобная перепланировка требует основательных расчётов с обязательным примыканием минимум к двум несущим стенам. Также будет необходим монтаж прочного каркаса, опор и чёткого плана дома. Ведь вес конструкции будет приличным. Она запросто может перегрузить несущие опоры дома. Чаще всего на такую перепланировку владельцы не идут без согласования с контролирующими органами.
Варианты
Есть немало вариантов перепланировок. Вот примеры, некоторые из которых изображены ниже на схемах:
- Разделить большую комнату и соединить между собой части смежных комнат, коридора и холла.
Убрать коридор с выгодой для себя и включить его в состав комнат и ванны.
Соорудить шкафы вдоль стен коридора.
Добавить площадь к санузлу, используя для этого нежилые помещения (подсобки, кладовые).
Соединить ванную и туалет.
Объединить комнату и кухню, установив при этом раздвижные двери или заменив плиту на электроплиту.
Сделать из простой квартиры квартиру-студию.
Отделить смежные комнаты.
Ниже представлена схема одного из возможных простых вариантов перепланировки квартиры.
А вот вариант перепланировки при отделении спальни, когда из 1-комнатной квартиры получается 2-комнатная.
Ещё один интереснейший вариант – изменение в квартиру-студию.
Соединение комнаты с балконом
Этот способ относится к расширению общей площади помещения. Если убрать стену между гостиной и балконом, то вполне можно преобразовать помещение в двухкомнатную квартиру. Советы по зонированию:
- полностью стену убирать не нужно, достаточно убрать балконную дверь и окно;
- балконное помещение следует утеплить, в противном случае в зимнее время холод будет распространяться по всему жилому пространству;
- балконная комната подходит для использования под зону отдыха или в качестве рабочего кабинета;
- на балконе вполне помещается небольшой диван, пару узких кресел и небольшой столик;
- балкон можно использовать для зоны отдыха. Достаточно установить небольшую односпальную кровать или раскладное кресло.
Сложность данного вида перепланировки состоит в правильном выборе отделки, ведь необходимо правильно стилистически соединить балкон с комнатой. Чтобы добиться этого, необходимо подбирать одинаковые отделочные материалы единой цветовой палитры.
Варианты перепланировки однокомнатной квартиры в двухкомнатную разной площади
То, каким образом будет осуществляться перепланировка, будет зависеть и от размеров квартиры. Рассмотрим наиболее распространенные площади однокомнатных квартир и варианты их трансформации в двухкомнатные.
30 кв м
Такие однушки очень популярны и встречаются в старых хрущевских домах. Наиболее частый вариант перепланировки такого пространства – это расширение мокрой зоны за счет площади коридора, благодаря чему увеличивается площадь санузла. Также зачастую владельцы таких квартир совмещают комнату и кухню, опять-таки с целью увеличения площади.
Для зонирования комнаты можно использовать диван в паре с барной стойкой
33 кв м
Такие квартиры не могут похвастаться большим количеством вариантов перепланировки, так как стена, разделяющая комнату и кухню, в однокомнатных квартирах является несущей. Единственный возможный вариант корректировок – увеличение санузла за счет площади коридора. Также всегда можно добавить перегородки, которые помогут разделить или зонировать пространство.
Кухня в нише – популярный вариант перепланировки, позволяющий значительно сэкономить пространство
40 кв м
Выполняя изменения в планировке такого пространства, можно демонтировать область подоконника возле выхода на балкон. Это позволит визуально увеличить пространства и сделать его более свободным.
Объединение комнаты с лоджией увеличит полезную площадь и откроет доступ солнечному освещению
45 кв м
Такие квартиры могут похвастаться очень удобными планировками, в каждой из которых предусмотрен эркер. Вариантов обустройства такой квартиры огромное количество, а потому, чтобы выбрать наиболее оптимальный, лучше обратиться за консультацией к профессионалам.
Эркер в такой квартире идеально подходит для организации места для отдыха
50 кв м
Чем больше пространства в однокомнатной квартире, тем проще разделить ее на две комнаты. В этом случае главное соблюсти все требования по освещению, площади “новой” комнаты, обустройству входа в санузел.
Спальную зону можно отделить с помощью складной перегородки-ширмы
Второй этаж в квартире
В старых частях многих крупных городов нередко можно увидеть квартиры с удивительно высокими потолками, например, однокомнатные сталинки. Да, когда-то были времена, когда строители не старались сэкономить на высоте помещений.
Если это касается вашей квартиры, можете считать, что вам крупно повезло. Вы сможете преобразовать свою однокомнатную квартиру непросто в двухкомнатную, но и в двухэтажную!
Конечно, перед проведением работ необходимо провести сложные расчёты, позволяющие второму этажу выдержать как постоянные нагрузки (мебель), так и временные (обитатели комнаты).
Обычно в качестве несущей конструкции выступает металлопрофиль (уголок), прикрепляемый к стенам помещения, а также доски, служащие полом для второго этажа. На втором этаже чаще всего располагают либо детскую комнату, либо спальню родителей. Первый этаж может оставаться гостиной комнатой или же кабинетом. Но при подобной перепланировке необходимо всерьёз задуматься – достаточно ли хороша вентиляция в помещении?
Если вентиляция недостаточна, то находиться на втором этаже будет просто некомфортно – слишком душно. При необходимости может быть установлена вытяжка или использованы другие способы усиления вентиляции помещения. Преобразование обычной комнаты в двухэтажную может удивить многих людей.
Но всё-таки в результате вы получаете полноценное, просторное помещение, в котором с комфортом сможет жить 3-4 человека. Поэтому игра, несомненно, стоит свеч. Финансовые затраты на подобную перепланировку будут сравнительно небольшими, а получившийся результат удовлетворит даже самого придирчивого владельца и обитателя квартиры.
Необходимость перепланировки
Распространённый вариант – когда будущие молодожёны съехались, а финансовые вливания каждого из супругов не позволяют осуществить покупку дома или квартиры своей мечты. Необходимость перепланировки может быть связана и с рождением ребенка, которому впоследствии понадобится детская. Идея перепланировать однокомнатное жильё в двухкомнатное применима и к частному домику общей (не только жилой) площадью в 25-40 квадратных метров.
Перепланировка квартиры в многоэтажном доме, если вы живёте не на последнем этаже, влечёт за собой сбор разрешительных справок. Даже когда стена, планируемая к сносу – перегородка, а не часть несущего остова, согласование с вашей жилконторой и иными службами всё равно потребуется. В своём же частном доме, если это не двух- или трёхэтажный, вы вправе менять план так, как посчитаете нужным.
Основная мотивация – когда два человека, живущие в однокомнатной квартире, имеют разные взгляды на режим дня. Когда парень хочет, например, поиграть в очередную сетевую игру, так как он никуда не спешит и у него «удалёнка», а девушке завтра в 7: 30 ехать на работу. Или, наоборот, у семьи есть желание отделить спальное ложе от угла с компьютерным столом. Особенно это касается квартир-студий, где прихожая, кухня, спальня и гостиная – единое целое. Легче, когда кухня отдельно – в данном случае ноутбук переносят на кухню и закрывают дверь в спальню.
Нередкая причина – избежать воздействия малого пространства однокомнатной квартиры на психику. Наконец, проект малогабаритной квартиры можно переделать из чисто дизайнерских мотивов, чтобы приблизиться к квартире своей мечты.


























































































