Особенности частного дома
Если мы говорим о 60 кв. м. квартиры, то подразумеваем полноценное жилое пространство. В то же время частный дом ставит нам особые условия.
Прежде всего, в своем собственном доме мы сами отвечаем за отопление, а потому надо выделить отдельное помещение под котельную. В ней мы разместим систему отопления, возможно разные коммуникации, связанные с водоснабжением и вентиляцией.
Весть еще одно важное отличие дома и квартиры. Если вы живете в квартире, придя домой зимой, вы сначала входите в подъезд, где температура выравнивается, хоть немного, и только потом попадаете в свою прихожую.
Но планировка дома 7 на 9, при правильном подходе, будет включать тамбур – небольшое промежуточное помещение, которое отделяет жилую часть дома и выход на улицу.
Проекты домов 7 на 7: фото и видео
Дачный одноэтажный дом с открытой верандойИсточник drevolog.ru
Проект и планировка дома с крыльцом мансардойИсточник kayabaparts.ru
Классический двухэтажный коттеджИсточник himcomp.ru
Коттедж 7 на 7 с балкономИсточник mmddom.ru
Двухэтажный дом 7 на 7 с гаражомИсточник kartinki24.ru
Обзор проекта двухэтажного дома 7х7 в следующем видео:
Заключение
Несмотря на свои скромные размеры, проекты домов 7 на 7 достаточно популярны в загородном строительстве. Они объединяют в себе сравнительно невысокую стоимость и возможность поэкспериментировать с планировками, чтобы получить по-настоящему уютное жилье. А если заказать строительство под ключ, то вы получите гарантию качества. Главное только выбрать хорошую строительную компанию.
Проекты
Вот так может выглядеть планировка двухэтажного каркасного дома 4х8 м. Первый уровень отведен главным образом под детскую и гостевую зоны. Есть там и холл. На верхнем ярусе расположена пара спален. Проблемой потенциально может стать отсутствие наверху санузла. Но зато это несколько упрощает планирование и позволяет отказаться от дополнительной разводки труб.
Дачный дом из бруса с гаражом высотой 2 этажа иногда примерно таков. В пользу концепции свидетельствует наличие тамбура. По крайней мере в снежную и слякотную погоду внутри будет чище. Санузел относительно невелик, но со своей задачей справляться должен. На верхнем ярусе находятся спальные комнаты, и их расположение нужно обдумывать дополнительно.
А вот так может выглядеть план жилого дома (точнее, его первого этажа) с баней. Одинаковая площадь парильной и моечной комнат вполне разумна. В помещении для досуга можно расслабиться — пространства там хватает. Крыльцо выполняет одновременно практическую и декоративную роли. Наверху вполне можно расположить гостевые и спальные комнаты.
Планировка двухэтажных домов
Двухэтажные дома – отличный вариант для большой семьи. Никто не будет стеснен, у каждого члена семьи своя комната, при этом зона отдыха, кухня и ванная не пострадает.
В среднем полезная площадь в каркасных домах 7х9 м составляет от 125 до 135 м2. По планировке они практически идентичны друг другу, конечно же, если не используется индивидуальный оригинальный проект.
На первом этаже пространство поделено между тамбуром, холлом, гостиной или общим залом, кухней. Возможны ванная комната (душевая кабинка) и туалет для гостей, а также гостевая комната.
На втором этаже располагаются спальни хозяев и детские. В среднем комнат может быть 3 или 4, многое зависит от того, какие квадратные метры отдаются под то или иное пространство. Если помещения небольшие, то их будет больше, и наоборот. На втором этаже также есть ванная комната, ее площадь зависит от оставшихся квадратных метров.
Расчеты и планировка
Строительство дома может осуществляться с различных материалов. Перед началом строительства надо провести ряд работ и решить некоторые вопросы:
- Архитектурные расчеты. Это основной этап, который включает исходные данные для расчета затрат материалов. Здесь определяется количество комнат и их назначение, расположение коммуникаций. Только на этом этапе можно выбрать самый оптимальный вариант и внести поправки. Надо определить общую и полезную площадь дома, стен.
- Составляется план для каждого этажа, подвального помещения, мансарды.
- Чертеж кровли позволяет подсчитать точное количество необходимых строительных материалов.
- Расположение коммуникаций. Надо определить, где будут находиться провода, дымоход, вентиляция, обогревательное или отопительное оборудование.
Перед началом строительства дома из любого материала требуется предварительно изучить грунт и определить проект фундамента. Необходимо точно знать его несущую способность с учетом глубины промерзания.
Фундамент надо подбирать отдельно для каждого региона и проекта домаИсточник tvoy-terem.ru
Особенности проектов коттеджей 7 на 7
Выбирая проекты домов 7 на 7 необходимо учитывать ряд важных вопросов. Они помогут подобрать и реализовать самый оптимальный вариант. Только при условии грамотной и слаженной работы можно получить долговечный и теплый дом, в котором каждому будет комфортно.
Проект и участок. В первую очередь необходимо учитывать особенности земельного участка. Проект лучше подбирать под участок, а не наоборот. Это позволит еще на этапе проектирования вносить некоторые изменения. Оптимальным вариантом считается квадратный дом, который подходит практически под любой участок, площадь которого должна быть не менее 4 соток.
Расположение окон, террасы и «куда смотрят» эркеры, надо подбирать в зависимости от участкаИсточник drevolog.ru
- Расходы на строительство. Определить точную стоимость строительства дома изначально практически невозможно, например, на итоговую сумму может повлиять регион страны, структура грунта. Также надо учитывать выбранные материалы, технологии и так далее. Точную сумму можно узнать только после того, как выбран проект, участок, материалы и технология строительства.
- Планировка и проект. При планировке и выборе проекта надо учитывать этажность строения. Можно рассмотреть одноэтажный вариант или план дома 7 на 7 с мансардой, или полноценных два этажа, с подземным гаражом, подвалом и так далее.
Размеры дома
Скорее всего, вы и сами понимаете, что 63 кв. м., если говорить о частном доме, не могут считаться просторным жилищем. Однако такое утверждение справедливо, только если посмотреть на фото дома 7 на 9 метров, у которого есть всего один этаж.
Все потому, что на площади средней двухкомнатной квартиры нельзя сделать дом, в котором будет комфортно жить целой семье, если только не добавить второй, а может быть и третий, этаж.
В таком сценарии наши 60 квадратов плавно переваливают за 120, а на такой площади можно разместить довольно много.
Да, в зависимости от конструкции крыши полезный объем мансардного помещения может быть сильно меньше ожидаемого, но в целом у нас получается полноценный дом. Но что в нем можно разместить?
Плюсы и минусы
Описывая дома размером 4 на 8 метров, надо сразу сказать, что они весьма компактны. Это не мешает добиваться оптимальной вместительности. Внутри можно организовывать и спальни, и гостевые зоны, и вспомогательные помещения. А также найдется место под санузел, тамбур и топочную. На свежем воздухе можно отдыхать на террасах и верандах, которые расширяют общее пространство и повышают функциональность жилища.
Добавление второго мансардного или даже полноценного этажа — еще один притягательный ход. Дом 4х8 м устроит обладателей неширокого участка. Обеспечивается визуальное сокращение длины территории, исключается «эффект трамвая» на своей земле. При этом остается немало места для посадок и хозяйственных построек. По мере надобности программа легко дорабатывается за счет:
-
изменения числа комнат;
-
переноса перегородок;
-
изменения местоположения дверей и окон;
-
корректировки местоположения лестниц.
Но надо понимать, что небольшой дом:
-
не позволяет добиться высокой автономности;
-
подходит максимум для семьи с одним ребенком;
-
сильно ограничивает место для хранения;
-
вызывает проблемы с оформлением интерьера;
-
не отличается высокой энергоэффективностью (либо теплозащита отнимает немало и без того недостающего места).
Стили
Рассмотрим несколько домов 7 на 10 метров в разных стилистических направлениях.
В стиле хай-тек
Загородный дом в современном стиле станет интересным вариантом для людей, предпочитающих оригинальность во всех сферах жизни. Треугольное здание имеет полностью застеклённый лицевой фасад, задняя часть выполнена из дерева, имеются панорамные окна. Двускатная крыша с мягкой кровлей прекрасно дополняет внешний дизайн строения. На первом этаже расположены спальня 10,8 м2, санузел 4,5 квадрата и большая кухня-гостиная 32,2 квадратных метра.
Классический с эркером
Кирпичный дом в классическом стиле с крыльцом перед входом. На первом этаже большая кухня в 17,2 квадратных метра с эркером – мечта всех домохозяек, а также гостиная 13,4 квадрата. Здесь расположены и гостевая спальня, которую можно превратить в кабинет, и санузел 3,9 м2. На втором этаже три спальни: большая в 13 кв. м и две детские – 10 и 11 квадратных метров.
Плюсы и слабые стороны одноэтажных домов
Одноэтажные строения всегда проще, чем двухэтажные и трехэтажные, но их нельзя считать идеальными и наиболее выгодными во всех случаях.
Один этаж – за и против
Одноэтажный каркасный дом проще построить своими руками, но есть и другие аргументы в пользу выбора:
- не нужен мощный фундамент;
- нет междуэтажных перекрытий;
- нет лестниц;
- проще сделать отопление и водоснабжение;
- можно сделать пристройку.
Расширить площадь легко при помощи эксплуатируемого чердака, веранды, террасы, подвала, гаража.
Однако есть и очевидные минусы:
- большой дом в один этаж занимает много места на участке;
- больше материалов уходит на кровельные работы;
- нет возможности обыграть современные дизайнерские приемы, например, второй свет;
- сложнее организовать приватные зоны.
Взвесив все “за” и против многие жители России для постоянного проживания за городом всё же выбирают именно одноэтажные каркасники. Особенно, если в доме будут проживать пожилые люди или люди с проблемами в опорно-двигательном аппарате.
Преимущества каркасного строительства
Недорогие одноэтажные каркасные дома вызывают сомнения у тех, кто привык строить из кирпича и блоков, но у них есть много преимуществ:
- Возможность быстрого строительства. Чтобы построить небольшой каркасный дом, уходит около месяца. А если работу будет делать большая бригада, справиться можно и за три недели.
- Низкая цена. Реализация каркасных проектов значительно дешевле других за счет простоты технологии, быстроты монтажа и доступности материалов. Окончательная цена формируется в зависимости от сложности проекта, выбранных материалов и технологий. Но возведение одноэтажного дома площадью 100 квадратных метров, обойдется в 500-900 тысяч рублей.
- Высокая энергоэффективность. Владельцы каркасных домов, тратят значительно меньше денег на отопление. Это одна их самых теплых технологий, поскольку каркасная стена заменяет по эффективности стену из кирпича толщиной 2 м.
- Не нужно часто обновлять фасад. Если правильно выполнить строительные работы и правильно эксплуатировать дом, внешний вид сохранится 50 лет.
- Нет усадки стен. За счет отсутствия усадки каркаса можно начинать внутреннюю отделку сразу после строительства, не боясь, что потом ее придется переделывать.
- Легкий вес конструкции. А это значит, что фундамент можно сделать облегченным и не таким массивным.
- Относительная пожаробезопасность. Каркасный дом делают из деревянных материалов, прошедших огнезащитную обработку. Также при строительстве используют негорючий утеплитель и безопасные отделочные материалы.
- Благодаря легкости и прочности, каркасный дом можно строить даже на неровных холмистых участках, например, в горах.
- В правильно построенном доме нет щелей и мостиков холода, поскольку стены утеплены и изолированы от ветра.
- Простота возведения. Дом можно построить, не привлекая много рабочих и дорогую технику.
Минусы каркасного домостроения
Выбирая проект одноэтажного дома, стоит остановиться и на минусах каркасного домостроения:
- Не все производители заботятся о качестве результата, а пытаются сэкономить. Поэтому вместо мощного бруса конструкцию собирают из досок, что делает ее менее прочной и сокращает срок эксплуатации до 50 лет.
- Чтобы повесить на стену шкаф, полку или телевизор, нужно еще на этапе строительства предусмотреть усилители.
- Слабая шумоизоляция каркасных стен. Чтобы смягчить этот эффект, необходимо потратиться на шумоизоляционные материалы для внутренних перегородок.
- Необходимость герметизации всех стыков. Классическим утеплителем для таких домов является минеральная вата. Она очень легкая, поэтому при сильном ветре может выдуваться из щелей. Чтобы этого избежать, полностью герметизируют дом снаружи и изнутри.
Частые ошибки
Во время проектирования неопытные владельцы участков допускают ошибки:
Начинают стройку без проекта – часто это заканчивается лишними затратами. Без чёткого планирования невозможно рассчитать, сколько материала потребуется для изготовления того или иного узла, элемента. При этом не учитываются локальные нагрузки, действующие на важные точки здания. Это может окончиться трагедией – дом деформируется и рухнет.
Неправильный расчёт общих размеров по отношению к толщинам стен и перегородок. Многие забывают, что стены состоят из нескольких слоёв, в результате схема оказывается неверной.
Ненадлежащий расчёт конструкций. Иногда планируют устройство чрезмерно мощного фундамента под небольшой домик, а иногда – наоборот – двух или трехэтажное строение делают из слишком тонких или некачественных элементов (металлопрофилей, досок, брусков). В первом случае впустую тратятся значительные средства, а во втором – возникает риск обрушения дома.
Ответственные узлы строят из сырого дерева – через год из элементов выйдет влага, а затем древесина будет деформироваться. В лучшем случае всю постройку перекосит и потребуются значительные переделки.
Рекомендации
Строительство из древесных материалов без предварительной антисептической обработки недопустимо – даже в самом правильно спроектированном каркасном или обычном деревянном доме неизбежно будет выпадать определенное количество конденсата на разделах (границах) сред, которых в каркасных домах гораздо больше, чем в постройках из традиционных массивных материалов. Увлажненное дерево, содержащее в своей структуре органические элементы (полисахариды), становится отличной питательной средой для различных форм микрофлоры и микрофауны, представители которой легко могут разрушить волокна древесины за небольшой (1-2 года) промежуток времени.
Цены на средства для защиты древесины
Пропитка для дерева
Утепление пирога вертикальных каркасных стен допускается лишь жесткими плитами строительного утеплителя. Засыпные и рулонные материалы из-за усадки и перемещения вниз со временем могут использоваться только на горизонтальных частях или в кровлях с уклоном до соотношения 1:5.
При использовании экономичных версий плит утеплителей малой плотности рекомендуется для предупреждения сползаний закреплять каждый ряд плит распорками между плитами. Такое решение сделает конструкцию более дорогой, увеличит теплопроводность стен, поэтому выгодно использовать качественный утеплитель более высокой плотности. Размер проемов между стоек каркаса не должен превышать поперечный размер плит утеплителя – 600 мм. Еще лучше, если размер проема уменьшен до 590 мм, чтобы исключить щели между стойками и плитами утеплителя. Нельзя заполнять стены обрезками утеплителя – будет много щелей.
Дома более 200 кв.м.
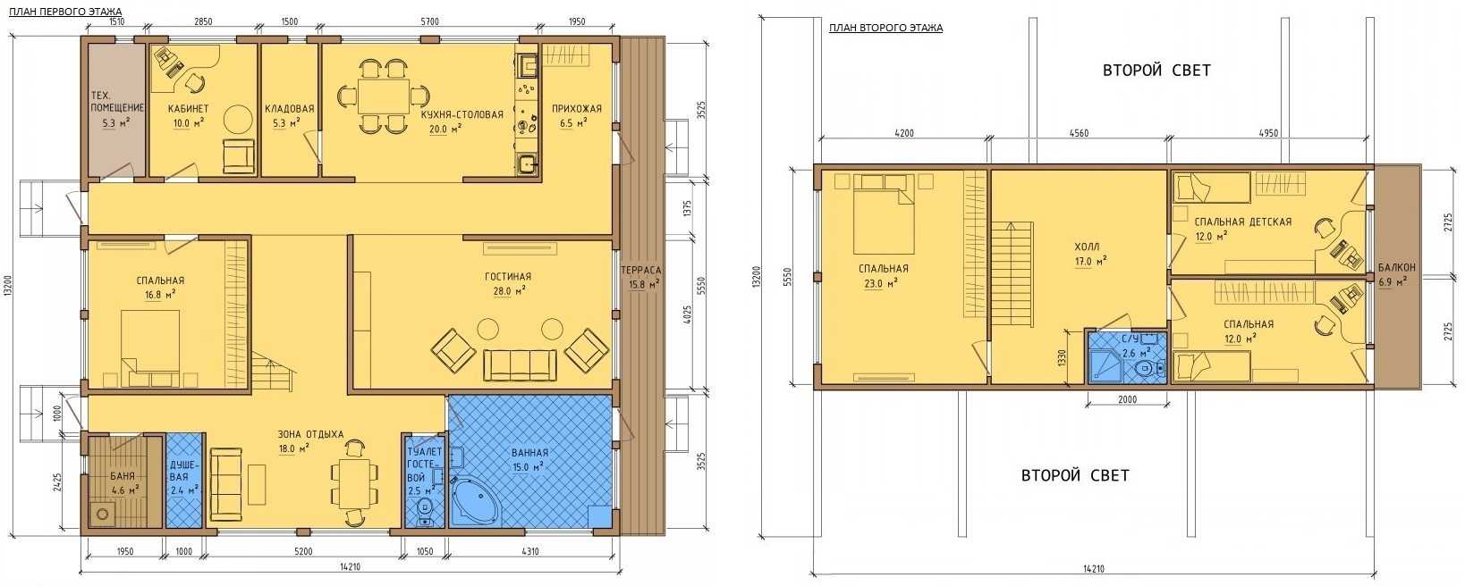
Размер строения: 13.2 на 16.2Площадь: 308 кв.м.
Великолепный дом в стиле шале. Имеется зона СПА, а также балкон большой площади и терраса, второй свет с панорамным остеклением. Несмотря на каркасную технологию возведения, дом напоминает брусовый, имеет лаги второго света, а также колоны на балконе и террасе. Однако в отличии от дома из бруса, не требуется ожидания усадки строения после его возведения. Монтаж возможен на основание любого типа с любым рельефом. Предусмотрен камин в гостиной.

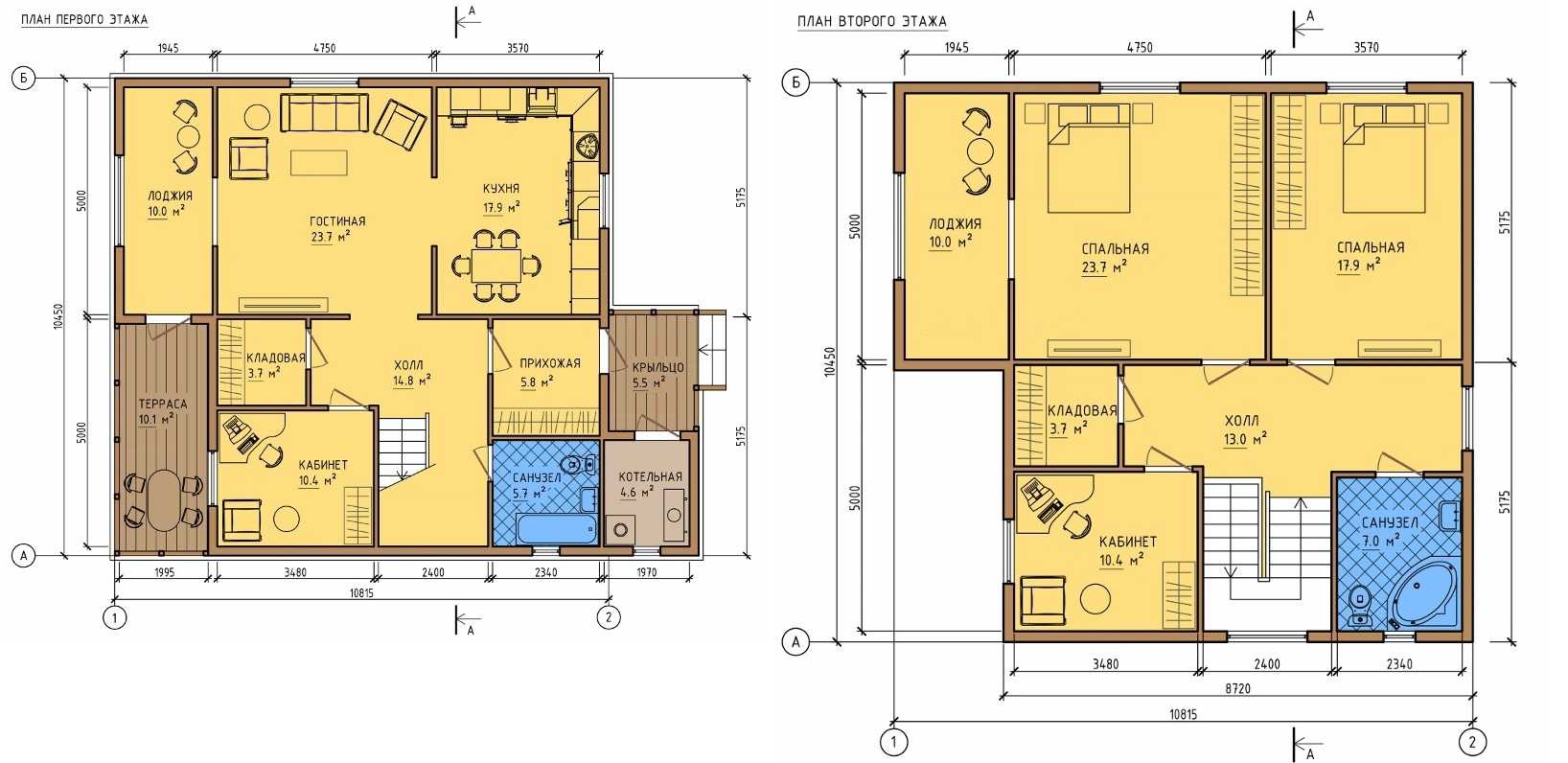
Размер строения: 10.5 на 13Площадь: 242 кв.м.

Очень просторный и удобный дом, позволяющий с комфортом проживать круглый год большой и дружной семье. Имеется помещение под котельную и прачечную, 2 лоджии с большой площадью остекления, красивый вход с окошками по бокам, просторные санузлы, вместительные кладовки.
Вот мы и показали наиболее популярные проекты каркасных домов в 2 этажа. Надеемся, наша статья поможет вам сделать оптимальный выбор.
Особенности планировки
Несмотря на небольшую площадь, планировка дома 7 на 9 позволяет включить все необходимые для комфортного проживания помещения и пристройки (гараж, террасу или веранду). Проекты дополняются крыльцом, эркерами или балконом, а также полноценным камином.
Двухэтажный дом размером 7х9 приспособлен для проживания четырех человек (обычно двое взрослых и двое детей). В зависимости от конструкции второго этажа постройка может иметь различную планировку.
Вариант планировки первого этажаИсточник mcprojekt.com.pl
Дом с мансардой
Площадь проекта ориентировочно составляет 90-100 м2. В рационально выполненной поэтажной планировке помещения делятся следующим образом:
- На первом этаже. Здесь планируют место для прихожей (нередко размещенной рядом с гардеробом или кладовой), бойлерной и ванной. Гостиную нередко объединяют в общее пространство с кухней и столовой. Площадь первого этажа можно немного увеличить при помощи эркера.
- На верхнем этаже. Здесь помещаются три спальни и небольшой холл перед лестницей. Если уменьшить размер спален, можно выделить место под скромный кабинет.
Дом с полумансардой
Площадь дома может достигать 100-120 м2. Поэтажная планировка помещений распределяется так:
- Первый этаж. Площадь разбита на прихожую, ванную, гардеробную, кухню, котельную и гостиную. Место столовой может занять спальня или кабинет.
- Верхний этаж. Здесь находятся две или три спальни, ванная. Холл около лестницы может иметь выход на балкон.
Мансарда открывает новые возможности для оформления интерьера спальниИсточник hotelresidencia.com
Двухэтажный дом
Жилая площадь доходит до 126-132 м2, на которой распределены такие помещения:
- На первом этаже. Пространство разделено на прихожую, холл перед лестницей, небольшой санузел (ванну заменяет душевая кабина), кухню и просторную гостиную.
- На втором этаже. Здесь предусматриваются три или четыре спальни, окружающие холл, ванная. Жилая площадь дома может быть дополнена двухэтажным эркером.
Дома 150-200 кв.м.
Размер строения: 10.5 на 13Площадь: 192 кв.м.

Проект предполагает постройку большого и комфортного, удобного дома. В нем будет котельная, второй вход с террасы, а также лоджия на двух этажах с большой площадью остекления. Просторный холл и кладовые делают дом удобным для использования в течении всего года.
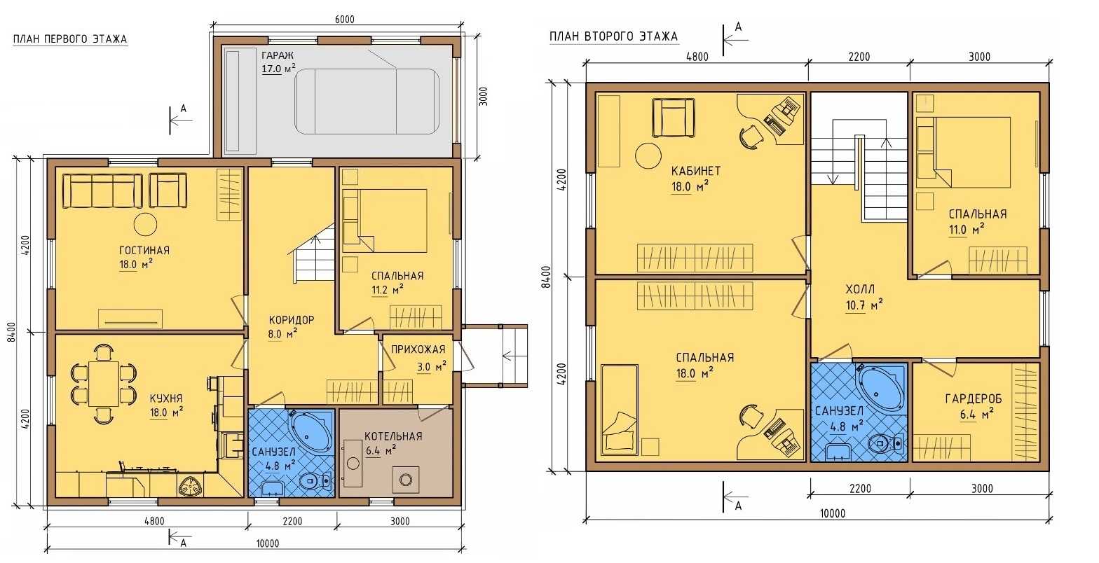
Размер строения: 8.4 на 10.5Площадь: 172 кв.м.

Отличительной чертой проекта является крыльцо, над которым можно возвести балкон огромной площади.
Размер строения: 8.4 на 10Площадь: 168 кв.м.

Комфортный дом большой площади с местом под установку газового котла в котельной.
Размер строения: 8.4 на 10Площадь: 167 кв.м.

По данному проекту можно построить комфортабельный дом для круглогодичного проживания с камином в гостиной. Сборка производится по так называемой технологии «Платформа».
Размер строения: 8.8 на 11.7Площадь: 198 кв.м.

Дом имеет не самую большую площадь, однако обладает изысканным внешним видом и весьма практичен. В нем есть встроенная сауна и камин в гостиной. Предусмотрено четыре спальни, при том их количество можно увеличить до пяти либо шести если установить мансардное окно в гардеробной. Кроме того, есть место под монтаж газового котла в специально предназначенном помещении.
Размер строения: 8.8 на 9.8Площадь: 197 кв.м.


Коттедж имеет большую террасу (патио) и панорамное остекление. В нем 3 спальни и помещение под кабинет, которое можно переделать под еще одну спальню либо гостевую комнату. Планировка делает дом удобным для проживания всей большой семьей. В котельной предусмотрено место под установку газового котла. Кроме того, она имеет большую площадь, что позволяет использовать ее в качестве подсобного помещения.
Размер строения: 9 на 9Площадь: 168 кв.м.

Высококомфортабельный коттедж с современным и очень красивым фасадом. В нем есть гостиная большой площади с кухней, а также три спальни на втором этаже. Кладовую при желании можно переделать под санузел.
Размер строения: 9.5 на 9.5Площадь: 180 кв.м.

Проект дает возможность построить недорогой, но при том очень удобный и просторный дом, имеющий камин в гостиной и предназначенный для круглогодичного проживания. Имеет второй свет, который можно не реализовывать, сделав еще одну комнату на втором этаже.
Размер строения: 8.4 на 10Площадь: 168 кв.м.

Уютный дом, просторный внутри и компактный снаружи. Имеется котельная с местом под установку газового котла. Отапливаемый гараж можно разместить с любой стороны здания.
Двухэтажный дом
В двухэтажном доме, который занимает площадку размером 6 на 9, может с комфортом расположиться большая семья. Второй уровень дома обычно отводят под спальную зону. Особенности планировки зависят от количества членов семьи и их образа жизни. Так, например, если в семье есть взрослые дети, то можно предусмотреть две гостиные, чтобы представитель разных поколений могли отдыхать и принимать гостей, не мешая друг другу. А для семей, в которых есть пожилые люди, рекомендуется одну из спален размещать на первом этаже.
Важный элемент двухэтажного строения – это межэтажная лестница. Она занимает пространство на первом и на втором этаже. Часто при планировке небольших коттеджей, с целью сэкономить место, проектируют узкие неудобные лестницы, иногда даже винтовые. Однако нужно помнить о том, что все конструкционные элементы жилища должны быть в первую очередь надежными и безопасными. Поэтому лучше устанавливать удобную маршевую лестницу с широкими ступенями. А для экономии пространства можно обустроить в нише под ступенями шкаф или хранилище для бытовых принадлежностей.
Планировка двухэтажного дома 6 на 9Источник drevolog.ru
Видео описание
Наглядно один из двухэтажных домов 6 на 9 можно увидеть в следующем видео:
Дом с мансардой
Очень распространенный вариант загородного жилья сегодня – это мансардный дом 6 на 9 с террасой, план которого включает встроенный гараж, это конечно не планировка дома 9 на 9, но здесь уже побольше возможностей обустроить уют, чем в просто одноэтажном. Такой коттедж максимально функционален. Он не так много весит, как дом с двумя полноценными этажами, и поэтому его можно построить на недорогом упрощенном фундаменте. Кроме того, высокая мансардная кровля и пристройка отлично дополняют экстерьер здания, делая его более оригинальным и солидным.
Жилая мансарда обеспечивает домовладельцам сразу несколько преимуществ:
- повышает эстетичность здания;
- позволяет самым экономичным способом увеличить количество полезных квадратных метров;
- раскрывает широкие возможности в оформлении дизайна интерьера.
Действительно, помещения в мансарде, со скошенной линией потолка, нестандартными пропорциями и верхним освещением получаются довольно уютными и стильными. Однако есть у мансарды и свои минусы:
- жилого пространства в мансарде меньше, чем в полноценном этаже;
- кровлю мансарды необходимо качественно утеплить и заизолировать от влаги, а это стоит не дешево;
- далеко не вся мебель подходит для мансардных комнат;
- мансардные окна, встраиваемые непосредственно в плоскость кровли, стоят намного дороже обычных.
Планировка дома 6 на 9 с мансардойИсточник sk-amigo.ru
Дизайн дома 6 на 9
Чтобы придать частному дому максимально выразительный и запоминающийся внешний вид, проектировщики используют всевозможные архитектурно-декоративные элементы, такие как арочные оконные проемы, эркеры, башенки, сложные формы кровли и т. д. Но такие детали существенно повышают стоимость строительства дома.
Самый экономичный как в строительстве, так и в эксплуатации вариант коттеджа – это здание прямоугольной формы с простой двускатной крышей. Украсить прямоугольный дом можно двумя способами – при помощи цветового контраста или декорирования, например, лепниной. Первый способ идеален для зданий в современном стиле, второй – для классических домов.
Отделать фасады можно штукатуркой, пластиковыми панелями, сайдингом или лицевым кирпичом. Для отделки цоколя используется керамогранит, искусственный или натуральный камень.
Видео описание
Демонстрацию дома 6 на 9 на выставке смотрите в видео:
При оформлении небольшого дома нельзя допускать перенасыщения декораций или цветовых переходов, так как все это визуально «сожмет» и без того не слишком широкие фасады. Классические дома 6 на 9, особенно если это одноэтажные строения, желательно облицовывать светлыми материалами пастельных тонов. При облицовке минималистичных современных коттеджей стоит подобрать 2 или 3 цвета, но не дробить ими фасады. Например, одним цветом можно окрасить верх здания, а другим – низ. Или каждый из фасадов полностью выкрасить одним отдельным цветом.
Заключение
Проекты домов 6 на 9 стабильно и заслуженно удерживают свою долю рынка загородного новостроя. Так как спрос порождает предложение, то есть большой выбор материалов и планировок, так что вам остается только подобрать квалифицированную строительную компанию с грамотными специалистами.
Стили
Первое, на что стоит обратить внимание при выборе того или иного стиля, – климатическая пригодность для вашего региона. Ведь выбрав красивый дом, где большую часть стен занимают окна, можно прогадать с тем, что этот дом будет непригоден для зимы или слишком жаркого лета
Далее мы рассмотрим несколько стилей, в которых выполняются каркасные дома.
Классика – самый распространенный и универсальный выбор, такой дом идеально впишется в городской стиль жизни или же на загородном участке. Этому стилю присущи правильные линии и ровные геометрические формы. Важна будет симметрия окон и крыши.
Отделка – декоративная штукатурка, а кровля из полимерно-песчаной черепицы.
Скандинавский стиль ассоциируется с холодом и лесом. Поэтому такие дома идеально подойдут для морозостойких регионов. Отличительная черта таких построек, помимо деревянной облицовки, высота в один этаж, долговечность и надежность.
Бунгало – прекрасный вариант для жаркого климата. Благодаря тонким сборным щитам атмосфера внутри помещения прохладная. В таких домах используют двускатную кровлю из черепицы. Присутствует летняя терраса.
В качестве итога
Любое строительство немыслимо без создания проектной документации, куда входят чертежи здания, планы, перечень деталей, смета
Важно понимать, что собирать упомянутую документацию придётся всегда, за исключением случаев, когда строительство осуществляется на территории садоводства или дачного участка. Иначе разрешение на строительство не выдадут, а дом будет считаться незаконной постройкой
В результате этого власти могут его снести.
Разработку чертежей лучше всего поручить либо специализированным инженерным конторам, либо частникам, если они обладают необходимой квалификацией. Первый вариант предпочтительнее, так как фирма даёт гарантии на работу, а в большинстве случаев предлагает дополнительные услуги по согласованию проекта.
Если же стройка будет происходить на даче, то чертежи можно составить самостоятельно. Для этого лучше использовать специальные программы для ПК, которые упрощают работу, не требуют навыков профессионального инженера. Главное – аккуратность и внимательность.




















































































