Что дает металл
С металлом работать гораздо сложнее, чем с деревом, но позволяет он добиться большего, и требуется хоть кустарное, но спецоборудование. Если такового нет, кроме болгарки с отрезным кругом и сварки, можно сделать лавочку по силовой схеме, работающей почти «по-деревянному», см. видео:
Видео: садовые лавочки со спинкой с применением металла
https://youtube.com/watch?v=JOzplYfk0Yc
Обе эти лавки выполнены из профтрубы, т.к
круглая в «деревянные» силовые схемы вписывается неважно. Лавочка на основе из круглых труб смотрится лучше и на ощупь приятнее, хотя и не так, как деревянная
Но для ее изготовления понадобится как минимум трубогиб, см. видео ниже. А для действительно красивой еще и станок для холодной ковки металла.
Видео: трубогиб для изготовления металлического профиля для лавочки
В любом случае изготовление лавочки из металла имеет ряд особенностей, на которых и следует задержаться. Причина – много большие, чем у дерева, обшая прочность, упругость и пластичность конструкционной стали. Настилы сиденья и спинки остаются деревянными – замена их металлом ничего не дает, кроме лишних расходов, тяжести, холода на тело и грязи от ржавчины на одежду.
Простейшая свободнонесущая лавочка на основе квадратной профтрубы приобретает механические свойства деревянной коробчатой, если балки настила по контуру прикрепить к основе; по длинным сторонам – из-под низу с шагом 150-200 мм, показано стрелками на поз. 1 рис.:
Конструкции лавочек из металла
Деревянный настил совместно с металлопрофилем образуют очень низкую, но вполне прочную коробку со всеми ее свойствами. Еще лучше будет таким же образом прикрепить снизу к полозьям ножек подпятники из дерева: металл избавится от непосредственного контакта с почвенной влагой и не будет царапать покрытие мощеной дорожки. Если же поставить стяжки, как в деревянной объемно-балочной схеме, поз. 2, то вместо профтрубы можно использовать уголок. В том и другом случае профиля 40х40х2 достаточно, чтобы сделать лавочку длиной до 1,5 м; на длину больше нужны промежуточные опоры.
Как облагородить простую лавочку из профтрубы
Обе эти лавочки на вид довольно-таки утилитарны. Но, опять-таки используя жесткость металлодеревянной коробки, лавочку на профтрубе можно заметно облагородить, применив двойной настил. Сначала на стальную основу крепится сплошная подкладка из влагостойкой или пропитанной гидрофобизатором фанеры от 16 мм; боковые опоры теперь могут стать ломаными или изогнутыми в плане. А затем на фанерную основу наклеиваются или крепятся сталью из-под низу декоративные деревянные элементы, см. рис. справа. Вот и все, лавка приобрела совсем другой вид.
Но вот фокусы нагрузок в металлических лавочках со спинкой еще опаснее, чем в деревянных, т.к. хотя бы один из них придется на хрупкий сварной шов, отмечено красным на поз. 3 и 4. Загнать его в «дырку» можно и «по-деревянному», поз. 5. Однако большая упругость металла позволяет растянуть треугольник жесткости на весь подлокотник. Для комфорта его верхнюю сторону делают выпуклой и, чтобы жесткость треугольника не уменьшилась, стягивают его силовой и одновременно декоративной деталью, поз. 5. Силовые «завитушки» выполняются способом холодной ковки; как делается кованая лавочка своими руками, см. видео:
Видео: лавочка с применением холодной ковки
Схема и размеры лавочки со спинкой из гнутых круглых труб
В более прочном на изгиб и одновременно более упругом металле выполнима и условно-жесткая фигура – круг. Точнее, кольцо из круглой трубы. На поз. 7 дан пример сочетания того и другого: каким бы образом ни оказался фокус нагрузок в материале, он по кольцу растечется но пяток ножек и ничему не навредит. Лавочка из труб круглого сечения, гнутых в кольца или их части (см. рис. справа) в эстетическом отношении хороша как элегантная и ажурная в стиле мини или другом модерновом, а в технологическом тем, что детали ее боковин можно выгнуть и без трубогиба – по пальцам из кусков арматурного прута от 16 мм, глубоко вбитым в плотный грунт.
Фото садовых скамеек для дачи и частного дома
Существует немало различных схем и чертежей скамеек со спинкой своими руками, каждый из которых подходит под свой ландшафт садового участка. По способу установки их делят на три группы:
- Стационарные модели, устанавливаемые на постоянном месте и имеющие фундаментное основание;
- Складные варианты, которые можно складывать и перемещать. Чаще всего это уже готовые покупные варианты, хотя изготовить их можно и вручную;
- Скамейки-качели, лучше всего подходящие для детей.
Скамейка-качели своими руками
Рассматривая различные материалы для таких скамеек, чаще всего отдают предпочтение дереву и металлу. Иногда для этого выбирается камень – хотя использовать его можно только при наличии соответствующего оформления территории дачи. А, при желании, материалом могут стать даже деревянные пни, брёвна, поддоны или автомобильные шины. Подобрать конкретный вариант следует в зависимости от своих вкусов, доступности подходящих деталей для изготовления и творческих способностей.
Скамейки для дачи из металла и дерева
Решив сделать скамейку для дачи своими руками, в первую очередь обращают внимание на варианты с металлическим каркасом. Их особенностью является повышенная прочность, долговечность и возможность использования в любых условиях. Хотя для удобства использования скамейки следует использовать:
Хотя для удобства использования скамейки следует использовать:
- антикоррозионные покрытия для защиты металла от ржавчины;
- дополнительные детали для сидения и спинки из других материалов (чаще всего – дерево или пластик).
Скамейка из металла с деревянными элементами
При изготовлении скамейки полностью из металла – например, из кованых элементов или металлической сетки она будет весить намного больше. Кроме того, пользоваться ею будет неудобно и в жару, и в холод. Поэтому комбинированная конструкция с использованием деревянных элементов может стать оптимальным вариантом. Во-первых, потому что древесина смотрится лучше других материалов (особенно, если использовать лиственницу или дуб). А, после обработки краской или специальным лаком, может прослужить намного дольше, не подвергаясь воздействию грибка, плесени и солнечных лучей. Ещё одной причиной выбрать для оформления садовой скамьи именно дерево является возможность гармонично вписать этот материал в ландшафт практически любого участка, в отличие от использования камней и пластика.
Скамейка с металлическими и деревянными элементами на веранде
скамейки из металла
Фото скамеек своими руками из камня
- длительный эксплуатационный срок – каменные лавочки способны прослужить десятки лет;
- надёжность полученной конструкции, которые практически невозможно повредить. А воздействовать на камень не могут ни осадки, ни температурные перепады;
- возможность отлично вписаться в некоторые виды ландшафта, став отличным дополнением для других каменных элементов.
При отсутствии на украшаемой с помощью таких скамеек территории дорожек, фонтанов или клумб из камня устанавливать их нежелательно. Хотя дополнить их могут и другие постройки, при строительстве которых использовались . Выгодно смотрятся лавки в ансамбле с ограждениями и беседками, фундамент которых сделан с помощью камней, или вместе с каменным домом. А одним из их немногих недостатков является проблема с изготовлением спинки, которая чаше всего отсутствует.
Ландшафт, в который отлично вписывается скамья из камня
Фото садовых скамеек своими руками из подручных материалов
Собирать садовую мебель можно не только из готовых досок, но и из более доступных и уже имеющихся в наличии материалов, сэкономив и время, и средства. Именно после выбора такого варианта на дачном участке может появиться изделие из остатков строительных конструкций и даже спиленных деревьев. Так, один из чертежей предусматривает изготовление скамьи из пней, легко поддающихся обработке и выглядящих натуральнее обработанного дерева.
Конструкция такого изделия может быть следующей:
- пара срезанных основания деревьев служит опорами для скамейки;
- для спинки и нижней перекладины применяются жерди;
- сиденье изготавливается из части ствола.
Для изготовления такой скамьи достаточно иметь циркулярную пилу и определённые навыки деревообработки. При их отсутствии для сиденья могут использоваться те же жерди или необрезные доски. После изготовления скамья покрывается лаком и смотрится даже выгоднее готового варианта.
Скамейка из брёвен и жердей
Это интересно: Краска для обоев масляная, водоэмульсионная
Как виды есть
Лавочек со спинкой существует большое количество и каждый владелец загородного дома или дачи выбирает для себя тот вариант, который больше всего подойдёт к экстерьеру его приусадебного участка.
Лавочки бывают самые различные в зависимости от их сферы применения.
- Обычные лавочки со спинкой подойдут для любого приусадебного участка и прекрасно впишутся в экстерьер двора. Они удобные и очень практичные, так как имеют простую конструкцию и непритязательны в своём внешнем виде. Подойдут для установки возле дома, в беседке, возле пруда и т. д. Могут изготавливаться из дерева, металла, камня, а также быть комбинированными (из дерева и металла, дерева и камня, дерева и кирпича, пластика и других строительных материалов).
- Угловые лавочки прекрасно будут смотреться там, где нельзя поставить обычную большую скамейку со спинкой. Их можно размещать в углах беседки, в садах, а также в любом удобном месте на приусадебном участке. Такие лавочки могут быть металлическими, деревянными, каменными и комбинированными.
- Обычные лавочки без спинки могут устанавливаться в любом месте, так как они являются универсальными и достаточно удобными для любого загородного дома. Их можно легко сделать своими руками, так как они изготавливаются по самому обычному стандартному чертежу классического типа.
- Овальные, круглые или полукруглые лавочки со спинкой и без спинки будут прекрасно смотреться в центре такой же круглой беседки, в центре сада или в другом месте, где будут создавать эстетичный экстерьер всему приусадебному участку, а также выполнять свои непосредственные функции. Также в центре круглой лавочки может расти дерево, зелёный куст, цвести красивая клумба или даже располагаться детская песочница. Здесь все зависит от фантазии мастера и функциональных потребностей владельцев загородного дома или дачи. Они могут выполняться из дерева, металла, камня, а также в комбинированной форме из различных совместимых друг с другом природных материалов.
Фотограларея: садовые скамейки со спинкой из дерева своими руками — виды и конструкции
Деревянная лавочка с металлическими ножками для сада
Деревянная лавочка с металлическими коваными ножками для сада
Угловая деревянная лавочка с кирпичной опорой
Полукруглая деревянная лавочка на опоре из кирпича
Лавочка из деревянного бруса для сада со спинкой
Декоративная деревянная лавочка для сада с опорами из ящиков для цветов
Классическая деревянная лавочка для сада с поручнями и спинкой
Круглая деревянная лавочка со спинкой для сада
Оригинальная лавочка из цельного полена для сада
Деревянная скамейка на опорах из натуральных камней для приусадебного участка
Деревянная лавочка с бетонными опорами в виде клумб для цветов
Деревянная лавочка с деревянными опорами в виде цветочных клумб
Деревянная лавочка с плетеной спинкой для сада
Каменная дизайнерская лавочка для сада
Квадратные деревянные лавочки для сада
Чертежи, размеры с описанием и схемы сборки лавки-трансформера
На первый взгляд, устройство скамейки кажется настолько сложным, что для сборки мебели обязательно нужно использовать чертежи и схему деталировки. Формально это действительно так. Если делать железную лавочку трансформер своими руками в частном доме, то чертежи можно с успехом заменить несколькими эскизами. Другое дело, если детали для изготовления скамейки придется заказывать слесарной мастерской. В этом случае без деталировки, чертежей и размеров собрать скамейку трансформер будет непросто.
Чертежи самой удачной модели лавочки-трансформера из металла для дачи
По схеме эта конструкция ничем не отличается от прямоугольных вариантов, но в ней практически отсутствуют сварные соединения, а значит, большую часть деталей можно выполнить кустарным способом. Чертежи скамейки — трансформера из закругленной профильной трубы можно сделать самому или использовать размеры лавки, приведенные ниже.
Несмотря на приличные размеры, данная схема трансформера справедливо считается одной из наиболее надежных и безопасных в эксплуатации
Единственным исключением являются арки правой лавочки и основания спинки. К дугам нужно будет приварить дополнительные втулки для установки болтового соединения
Мало кто обращает внимание на чертежах трансформера — скамейки из квадратной трубы на наличие дополнительных подварных элементов — втулок. Большинство совершают грубейшую ошибку, пытаясь сверлить отверстия прямо в квадратной трубе
Из-за небольшого размера сечения материала делать этого категорически нельзя, иначе профиль может лопнуть под нагрузкой. Если нельзя наварить втулки, например, нет сварки, то лучше подыскать чертежи трансформера на круглой трубе.
Столик, он же спинка трансформера, собирается в раме из металлического профиля, поэтому, несмотря на небольшие размеры, прочность столешницы получается достаточно большой.
Важно! В отличие от других моделей лавочек, размер которых в длину редко превышает 150 см, в этой схеме — 180 см, поэтому используются вертикальные подпорки из круглой трубы. Это означает, что трансформер способен выдержать значительно большую нагрузку, чем модели с прямоугольными опорами
Это означает, что трансформер способен выдержать значительно большую нагрузку, чем модели с прямоугольными опорами.
Чертежи садовой скамейки-трансформера из дерева
Постройка лавки из дерева может показаться более сложной, но это не совсем так. Если присмотреться к чертежу и деталировке, приведенным ниже, то окажется, что конструкция просто спланирована из большего количества элементов.
Так выглядит чертеж классической трансформер — лавочки из деревянной рейки.
Схема трансформера с присоединенной скамейкой. Размеры конструкции можно менять, так как ширины сидения в 183 мм для взрослого человека – маловато
По сути, наиболее сложным этапом является сборка каркаса лавочек, его приходится делать по деталировке, приведенной ниже.
В точках шарниров лучше всего запрессовать стальные втулки, а в качестве поворотной оси будет использоваться болт с гайкой.
Как сделать каркас из металла для садовой скамейки своими руками
Прежде чем приступать к изготовлению скамейки любого типа, необходимо провести подготовительные работы, в частности, рекомендуется заранее изучить технологию сгиба и сварки труб.
Гибка металлической трубы
Для того чтобы создать гнутые элементы, необходимо заткнуть один конец трубы пробкой, и насыпать в неё мелкий песок, а затем закрыть с другой стороны. Затем поместить её в устройство для сгибания, зажав между выступом на тормозном диске и штырём, а затем изогнуть под нужным углом.
Если труба недостаточно хорошо гнётся, то можно воспользоваться паяльной лампой, и нагреть место изгиба.
Для изготовления различных элементов для лавочки лучше всего брать трубы с круглым или овальным сечением, так как они лучше всего поддаются изгибам.
Последовательность изготовления придомовой лавочки без спинки
Скамья без спинки является очень простой конструкцией, поэтому для её изготовления необходимо будет сделать три прямоугольника, которые соединить между собой трубами, выступающими в качестве сиденья.
Чертеж лавочки без спинки можно сделать самому
Для изготовления лавки необходимо будет взять:
- металлическую квадратную или прямоугольную трубу длиной 11 метров (сечение проката 30х30 мм);
- 2 куска трубы профильной по 2,3 метра;
- 6 отрезков по 60 см;
- 6 отрезков по 45 см;
- 8 деревянных досок шириной 6 см;
- 24 болта с гайками.
Для изготовления обычной лавочки без спинки необходимо сварить 3 подготовленных заранее прямоугольника, а затем вместе соединить их двумя направляющими трубами, которые будут служить рамой для сидения. Далее работа должна проходить по плану:
- Длинные опорные отрезки необходимо располагать горизонтально, а более короткие крепить вертикально.
- В процессе сварки отрезанных кусков труб нужно выдерживать углы опор, так как они должны составлять ровно 90 градусов.
- После проведения всех работ по свариванию необходимо хорошо зачистить все швы специальной шлифмашиной или обычным напильником.
- Затем швы надо хорошо загрунтовать.
- После того как каркас будет сварен, на каждой из опор нужно высверлить 8 отверстий (расположенных симметрично) для крепления досок.
- Для предупреждения появления ржавчины каркас лавки необходимо покрыть краской по металлу.
- Деревянные доски рекомендуется пропитать морилкой.
- При желании деревянные доски можно заменить трубами прямоугольной формы. Их надо просто приварить к конструкции и также окрасить противокоррозийной краской.
- Для того чтобы острые уголки не мешали, рейки можно уложить в специально подготовленную раму из металла. Понадобится 1,2 м трубы.
Для лавки без спинки рекомендуется брать трубы с квадртаным сечением
Как сварить каркас лавочки со спинкой небольшого размера
- профильная труба с сечением 25х25 мм (8 м);
- сосновые доски (толщина 30 и 25 мм) для сиденья и устройства спинки.
Для устройства каркаса заранее нужно подготовить:
- Трубу профилированную — 1,55 м. Для создания перемычки между двумя опорами.
- 2 гнутых куска трубы по 78 см. Опоры под спинку лавки.
- 2 куска трубы по 35 см. Для изготовления основы для сидения.
- 2 куска трубы по 39 см. Для передних опор.
- 2 куска трубы по 20 см. Для укрепления передних опоры.
- 4 стальные пластины 40х40 мм. Для изготовления подставок на опоры.
- 2 гнутые стальные планки по 45 см. Для соединения будущих опоры.
Чертеж лавочки со спинкой поможет тщательно всё подготовить
Для изготовления сидения понадобятся:
- 3 сосновые доски: длина — 1,6 м, ширина — 6 см, толщина — 3 см (для основы сидения);
- 3 доски: длина — 1,6 м, ширина 6 см, толщина — 2,5 см (для спинки);
- 24 болта с гайками.
Работа по изготовлению скамейки состоит из нескольких этапов:
- Для начала необходимо сварить поперечную перекладину и два куска трубы длиной по 35 см. Перемычка должна находиться точно по центру каждого из кусков и под углом в 90 градусов.
- К данной конструкции необходимо приварить два гнутых куска трубы длиной по 78 см. Сваривать надо по месту сгиба.
Сварочные работы необходимо проводить в специальных защитных очках
Сваривание деталей лавочки необходимо каждый раз проверять
Сварка опор лавочки сделает её более прочной
Места сварки рекомендуется отшлифовать
Цвет каркаса может быть любым
Расстояние между досками не должно быть большим
Для удобства можно сделать на лавке металлические подлокотники. Для этого надо взять два куска трубы по 75 см и просто согнуть их под углом 90 градусов, а затем приварить по бокам к металлическому каркасу. Швы обработать шлифовальной машинкой или напильником. Подлокотники также можно покрасить.
Если сделать округлые подошвы у ножек, то на такой лавочке можно будет ещё и качаться.
Перед тем как вынести лавочку на улицу, ей нужно дать время высохнуть
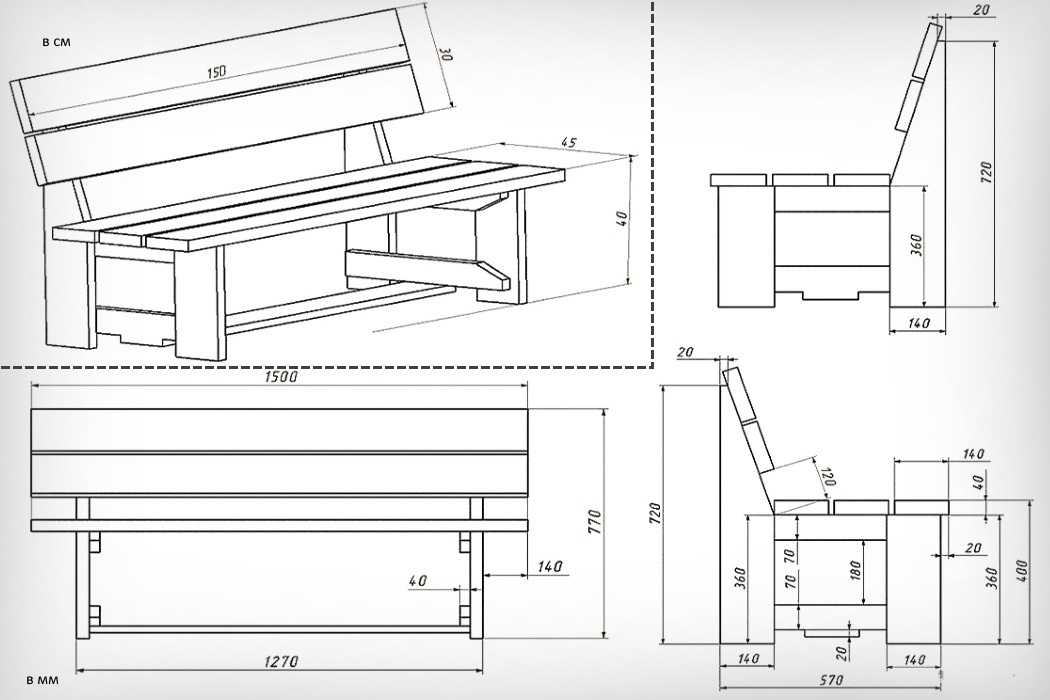
Инструкция по изготовлению лавочки со спинкой (скамейки)
Вне зависимости от конкретных габаритов скамьи, порядок его изготовления остается неизменным. Рассмотрим его поэтапно.
Этап 1: подготовка инструментов и материалов
Чтобы сделать скамейку на 3 человека длиной 150 см, шириной 45 см и высотой 40 см, необходимо подготовить:
- деревянные доски (150х14 см, толщиной 4 см) – 3 заготовки для сиденья и 2 для спинки;
- 2 заготовки, выполняющие функции опор и держателей для спинки (высотой 72 см, шириной 14 см, толщиной 4 см);
- 2 заготовки для передних опор скамьи (длиной 36 см, высотой 14 см, толщиной 4 см);
- 5 бруса для усиления конструкции скамейки (4 шт. – 7х4 см, длиной по 55 см и 1 шт. – 2х2 см, длиной 120 см);
- карандаш, уровень с линейкой, рулетка;
- электрический лобзик для раскроя древесины (или пила, болгарка с диском по дереву);
- электрорубанок для шлифовки поверхностей досок, наждачная бумага;
- грунтовка, лак и кисть.
Пример чертежа, который вмещает в себя все перечисленные элементы и их размеры, представлен ниже:

Этап 2: выбор способа соединения
Сборка конструкции зависит от того, какие крепежные элементы планируется использовать для этого:
- саморезы по дереву;
- мебельные болты, гайки, шайбы;
- гвозди;
- деревянные шканты + столярный клей.
При выборе способа соединения элементов деревянной конструкции нужно учитывать, какую нагрузку она должна будет выдерживать.
При использовании болтов потребуется подготовить также дрель и сверло, диаметр которого несколько больше сечения выбранных болтов. Благодаря этому они смогут легко войти в подготовленные для них отверстия. Если диаметр отверстия будет больше, чем диаметр шляпки болта и гайки, то можно воспользоваться шайбами.
Если правильно использовать шканты и в достаточном количестве, то конструкция будет крепкой:
В нашем примере для соединения деталей скамьи будут применяться саморезы. Их шляпки при вкручивании нужно слегка утапливать:
Саморез должен входить под прямым углом к поверхности, в которую он вкручивается.
Этап 3: сборка элементов скамейки
Конструкция собирается в такой последовательности:
- Если нет досок нужных размеров, раскроить древесину на заготовки, используя электролобзик или торцовочную пилу. Каждый полученный элемент тщательно обработать, а заготовки для спинки и сиденья отшлифовывать. По торцам досок пройтись электрорубанком, в идеале придавая им закругленную форму.
- На полученных деталях провести необходимые измерения и отметить карандашом те места, в которых будут находиться крепежные элементы. В этих местах просверлить отверстия, ориентируясь на чертежи скамьи.
- Длинным задним опорам скамьи, которые также выступают каркасом для спинки, придать правильный угол наклона. Для этого на 2 деревянных заготовках длиной 72 см нанести разметку. Прежде всего, отметить высоту скамейки – 36 см. Этот участок доски не нужно обрабатывать. На остальном отрезке надо сделать срез в 10-20°. На второй ножке сделать такой же срез, иначе скамейка получится перекошенной.
- Собрать ножки конструкции, выдержав между передними и задними элементами «окно» в 29 см. Соединять их брусом, который нужно раскраивать на всю ширину скамьи (55 см). По возможности стоит сделать двойную обвязку – сверху и снизу:
-
Подготовленные 2 боковины соединить между собой с помощью досок, предназначенных для сидения. Их можно прикрутить к верхним брусьям обвязки саморезами или прочими крепежными элементами. Если используются болты, то для большей эстетичности скамьи их можно маскировать – перед началом соединения в местах прохождения болтов с помощью специальной коронки высверлить небольшие углубления.
За счет этого при сборке изделия шайбы погрузятся в подготовленные под них ниши, которые в дальнейшем надо закрыть смесью из клея ПВА и мелкой древесной стружки. Альтернативный вариант – вырезать из дерева округлые элементы, которыми можно будет закрыть отверстия. - Для усиления конструкции с помощью брусьев по ножкам можно сделать нижнюю обвязку. 2 заготовки длиной 150 см следует прикрутить к передним и задним опорам. При нехватке пиломатериала можно 1 поперечину прикрепить к нижним брусьям обвязки.
- В конце закрепить спинку скамейки с помощью саморезов (чтобы крепёж не ржавел – «утопите» его шляпку в древесину):
Этап 4: финишная отделка скамейки
Собранную скамью нужно пропитать средством для защиты от гниения – антисептиком с проникающим действием. Большинство таких препаратов содержат смолы и различные добавки. Работать с ними обязательно нужно в перчатках и защитных очках.
По завершении пропитки скамейку остается покрыть водостойким лаком в несколько слоев или обычной масляной краской.
Как сделать подобную деревянную лавку со спинкой для дачи, показано и в следующем видео:
Деревянная складная скамейка
Основным преимуществом складной мебели является ее универсальность. За счет встроенного механизма появляется возможность уменьшить габариты конструкции. Благодаря этому значительно облегчается процесс хранения и переноса скамейки с одного места на другое. Особенно компактные модели без труда помещаются в багажнике автомобиля.
Складную скамейку удобно хранить в закрытом помещении, где дерево не будет мокнуть
Некоторые модификации могут стать полноценной заменой целому набору садовой мебели. Скамейка-трансформер легко превращается в пару лавочек со столешницей. В сложенном состоянии конструкция не занимает много места, а при необходимости она может стать удобной обеденной зоной.
Скамейка-трансформер из сосновых досок
Металлические садовые скамейки своими руками: чертежи и фото, характеристика
Несмотря на то что данный вид конструкций относится к разряду металлических, в большинстве случаев на фото скамеек из металла своими руками, которые встречаются в интернете, изображены изделия комбинированного типа. В них каркасная часть изготовлена из металла, а в качестве материала для сидения и спинки используется древесина.
Удачное применение металлических элементов в скамейках для сада
Таким образом не только удешевляется строительство скамейки, но и сама конструкция становится более практичной и комфортной, так как деревянное сидение, в отличие от металлического, не раскаляется под солнцем.
Преимущества скамейки своими руками из металла перед изделиями из других материалов
Металлические опоры лишены тех недостатков, которые присущи каркасным частям скамеек из других материалов:
чугун – самый тяжелый вид конструкций, который пригоден для установки исключительно в парковых зонах (изделия характеризуются высокой стоимостью, декоративностью и сложной технологией изготовления);
Яркая и креативная конструкция скамейки
- бетон – скамейки имеют большой вес и сопровождаются целым рядом трудностей в процессе установки на участке;
- камень – изделия имеют высокую стоимость и существенно ограничены в вопросах дизайна;
- древесина – несмотря на красоту, доступность и малый вес, опоры в данных конструкциях достаточно быстро приходят в непригодность, поскольку материал чрезвычайно уязвим перед влиянием погодных и климатических условий, а также негативных факторов окружающей среды (грибки, насекомые, плесень).
Оригинальная металлическая скамейка, выполненная из спинки старой кровати
Нередко для создания металлического каркаса в качестве сырья применяется сталь. Именно этот материал считается наиболее подходящим для скамеек и лавок, предназначенных для установки на участках дачного типа и придомовых территориях загородных коттеджей. Сталь практически не подвержена влиянию коррозийных процессов, разрушению. Она предлагает множество вариантов исполнения дизайна за счет применения метода декоративной ковки.
Сочетание металла и дерева в оригинальном исполнении
Особенности создания необычных конструкций
Профильные трубы также применяются для создания декоративных элементов, которыми можно дополнить готовую скамью или лавку. Если вы приняли решение создать уникальную конструкцию – вам потребуется добавить к общему списку необходимых инструментов еще несколько пунктов.
Для формирования стального декора потребуется применение:
слесарных тисков;
Металлическая конструкция является чудесным оформлением дерева в саду
- инструментария для сгибания труб;
- мини-станка, именуемого «Улиткой».
Чтобы получить симметричные изгибы труб рекомендуется использовать плаз. Основой для его изготовления служит кусок фанерного листа. Поверх него следует нанести контурную часть декоративного элемента, который вы хотите получить. Для создания изящных и ровных изгибов следует использовать возможности паяльной лампы, которая размягчает материал и делает его податливым для сгибания. Для этого достаточно воздействовать лампой на необходимый участок.
Необычная детская скамейка из металла в форме бабочки
Наполненные трубы для сгибания необходимо поместить на станок, уложив их между упором и выступом, расположенным в центре. После чего можно приступать к работе. Процесс загибания труб при этом осуществляется вручную.
Скамейка с надежным каркасом из металла прослужит долгие годы
Это интересно: Резиновое покрытие для детских площадок — безопасная игровая зона





































































